西山枫林现代简约装修风格
发布时间:2023-06-12 11:00
案例详情 追求宽松、简洁、闲适的居家氛围成为人们的向往,运用具有都市气息的经典时尚系列设计将怀旧、前卫、简朴与精巧共溶一炉,将动感都市的朝气与急促的生活节奏相融合。
空间采用直入眼帘的律动线条,提升空间的节奏感,丰富空间层次增加多变性。以暖色为主色调,环绕整个客厅空间,时尚且个性。
以简约的表现形式来满意业主对空间环境那种理性的、天性的的需要。空间中着重少即是多,放弃不必要的装饰元素,追求时髦和现代的简约外型、愉悦温馨的色彩。用直白的装饰言语表现空间和家具营建的空气,进而赋予空间特性和安静。
深木色餐厅桌椅点缀少许浅色,浅而不冷,深而不重。将色彩和材料的质感发挥到很好。整体细腻而含蓄的空间设计,打造了一个幸福感爆棚的用餐环境。
利用衣柜分割空间,做开放式衣帽间,增加空间功能。色彩上运用了暖色系,增加氛围感,造型上采用简洁的线条,给人以含蓄内敛的感觉,以简胜繁
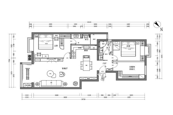
原户型为封闭式厨房,现将其改成餐厨一体的开放式厨房,使空间提升视觉感受,增加视野通透性,同时也让空间中可以具备更好的通风效果。
网址:西山枫林现代简约装修风格 https://c.jiaju82.com/news-view-id-846497.html

