海润国际现代简约装修风格
发布时间:2023-06-12 11:00
案例详情 营造两个人喜欢的且惬意的生活方式,个性,随性,浪漫,有格调,兴趣相伴,功能相伴,创作相伴,理想相伴。
客餐厅厨房设计在一个空间,整体以奶油色调来搭配,餐桌用岩板的材料来设计和橱柜形成搭接的关系,厨房吊地柜中间的岩板穿插到沙发背景墙的位置,及达到厨房台面防水也实现了客餐厨的设计统一。
主卧室空间设计了一个衣帽间的区域,即有了衣帽间的仪式感,也可以挡一下主卫门对着床的弊端,侧边墙设计了大面积的镜子,视野上扩充了衣帽间的大小。
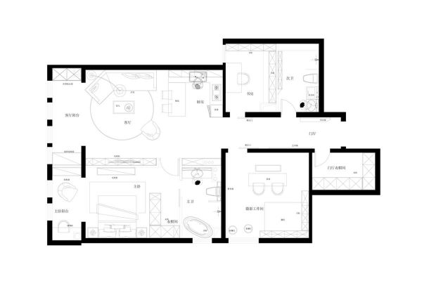
书房空间是原本的厨房空间改造过来的,通过柜体隐蔽了所有的管道烟道,整体设计硬朗,地面采用鱼骨拼的灰色地板,浅灰色门板加深色柜体,典型的男性独立书房空间。
儿童房空间有限,采用的榻榻米的形式设计,书柜,书桌,衣柜于一体的空间设计,地面选用温馨的地板,让孩子房间更舒适。
户型是全南的户型,三居室空间,客户需要有一个书房空间,给客户把厨房设计到了客厅空间,餐吧区域,把厨房改成了书房空间。
网址:海润国际现代简约装修风格 https://c.jiaju82.com/news-view-id-846496.html

