融域嘉园现代简约北京装修
发布时间:2023-06-02 09:02
案例详情 简约空间设计含蓄,往往能达到以少胜多、以简胜繁的效果,在如今的快节奏生活中,简洁大方的装修风格更加倍受年轻人的推崇
在快节奏、高频率、满负荷的时代下,人们渴望得到身心的放松,人们的压力需要舒缓。设计上摈弃传统的繁琐与复杂,用简洁和纯净的色调来调节生活空间,自然顺畅的立面,跳跃明快的色彩,结合特定的软装,突出其美感。
以简洁、纯净的色彩为主色调,大气又不失温馨,搭配石材瓷砖使整个空间更有质感,顶面搭配简单的吊顶,线条流畅富有时尚感。
地面采用和客厅相同的材质,大理石材质餐桌与浅木色组合,增加了视觉冲击的同时也不失温馨。桌面上的绿植在营造氛围的同时也为空间带来了生机。
地面采用和客厅相同的材质,大理石材质餐桌与浅木色组合,增加了视觉冲击的同时也不失温馨。桌面上的绿植在营造氛围的同时也为空间带来了生机。
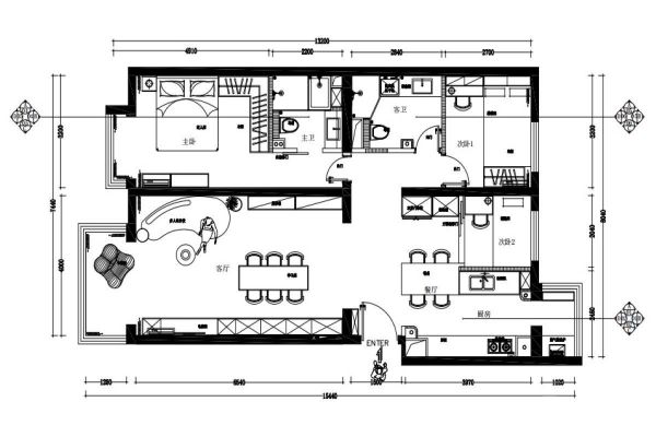
此房屋是业主作为婚房使用,婆婆陪同,保留两居室。新做小书房,增加阅读空间,厨房做开放式设计,提供空间利用率,增加活动范围,同时也利于空气流通和采光。
网址:融域嘉园现代简约北京装修 https://c.jiaju82.com/news-view-id-845752.html

