陶然湖景现代简约老房翻新
发布时间:2023-06-02 09:00
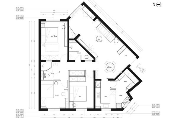
案例详情 解除原始建筑的限制,也让空间动线更多样性。塑造从明转暗,再由暗转明的空间脉络,于自然过渡的动线之内阐释简约空间的多样性、层次性与可能性,也让住在里面的每一个人都有不一样的印象。
在客厅空间中,通过颜色扩展空间中餐桌与沙发的关系,强调家的和谐温馨、轻松愉快的氛围,玄关链接空间与居家情态,让休闲娱乐也融入进来,未迸发出更多灵感。
棱角利落的体块,统一物体与环境的配色,运用线条的导引性展露多元的实用功能与装饰细节,衍生出自带韵律之美的亮点,区分毗邻场域的主次关系。汲取深度哲学的意涵,用绿意生机点染出空间意境,随着光与质感的碰撞,渗透无边的美学。
主卧通过空间的纵深特征顺势包容内部空间,把控暗调与明调的呈现比例,利用白色与木色背景勾勒光影之美,以刚柔共生的矛盾感串联不同视角捕获的叙事形态。
通过颜色搭配汇成了这鲜活的儿童卧室。在卧室中减少动线的枯燥,眺望世界,空间的结构如韵律流转,层层叠叠,如谱华章。
通过全案设计方式,帮助客户解决设计到施工到落地的问题烦恼,将最完美的效果展现出来。 在设计中,我们不以固定的风格来拘束自己,找出最适合的搭配来呈现空间最美好的一面,让造型和层次结合,秉持设计专业视野,给每个客户无限空间想象与无瑕居住感受。
网址:陶然湖景现代简约老房翻新 https://c.jiaju82.com/news-view-id-845751.html

