极致空间

发布时间:2020-05-21 11:01
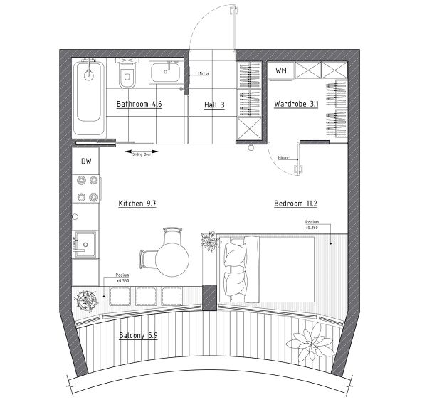
案例详情 这么小的空间,全开放式,客厅餐厅厨房一体,以灰白为主调,自流平水泥地板,绿色的餐桌非常吸睛,大大的玻璃窗光线充足,显得空间很大 极致空间

客厅餐厅一体,也是卧室。

极致空间

超大地柜,以满足二人正常使用。

极致空间

定制榻榻米,床头做成书柜,内部可储存很多杂物,非常方便。

极致空间

小小的卫生间,不单干湿分离,还配上了浴缸。

极致空间

一个小小的空间,五脏俱全,别人家有的,我们也有。

网址:极致空间 https://c.jiaju82.com/news-view-id-703300.html

随便看看