LOFT轻奢日式混搭风
发布时间:2020-05-21 11:01
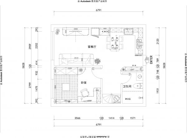
案例详情 业主需求:常住人口两人,未来打算要孩子,装修预算12万左右,室内面积45平米。喜欢现代轻奢风格要求增加储物空间,化的利用空间,二楼要保留起居室,做日式风格。设计说明:本案例建筑面积78平米LOFT,一楼二楼共两居室。一楼客厅轻奢风格,二楼起居室使用日式风格
厨房整体采用是灰褐色基调成熟稳重,开放式厨房+吧台的设计使整体的空间更加的灵活多样。
客厅和厨房形成一个整体,主要以成熟稳重颜色为主,背景墙采用的木饰面装饰。
一楼卧室整体定制家具包括榻榻米、衣柜、书架、书桌使其形成一个整体配上蓝绿色基调的背景打造出完美的生活环境。
二楼主卧适度的装饰是家居不缺乏时代气息,使人在在空间得到精神和身体的放松,并紧跟着时尚的步伐
二楼起居室以日式风格为主简洁大方干净利索节省空间,客厅通常是与外人社交的空间,二起居室切切不同。要做的优雅宁静。
客厅采用的是现代木饰面的背景墙,不缺乏时代气息,使人在在空间得到精神和身体的放松,并紧跟着时尚的步伐
一楼户型方正,各个空间分化明显,采光相对较好。
二楼可借助一楼挑空采光加上自身窗户整体采光不错,空间上分化合理储物间卫生间满足客户需求方便使用。
网址:LOFT轻奢日式混搭风 https://c.jiaju82.com/news-view-id-703299.html

