首创国际半岛(300平)简美风格案例赏析
发布时间:2020-05-12 16:01
案例详情 设计主旨:受社会文化影响,美式风格也倾向了自在不羁,简洁明晰的生活方式,而这也迎合了快节奏的生活需求,不需要太多的矫饰,一切都应简洁明了。简洁明晰的线条,粗狂简单的木制家具,更多的注重家居功能性和实用性而非装饰性的设计构思,每一个元素的展现都使这套方案缀上典型的美式风格的标签。
美国是一个非常崇尚民主自由的国家,所以,很多美式风格给人的感觉也是非常洒脱的,近年来,简美的装修风格就受到了很多人的喜爱。
儿童房效果赏析
书房比较现代简约,让原本狭小的书房显得宽敞明亮。
简洁明晰的线条,粗狂简单的木制家具。
美式家居的卧室布置较为温馨,作为主人的私密空间,主要以功能性和实用舒适为考虑的重点,一般的卧室不设顶灯,多用温馨柔软的成套布艺来装点,同时在软装和用色上非常统一。
一层平面布置图
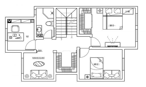
二层平面布置图
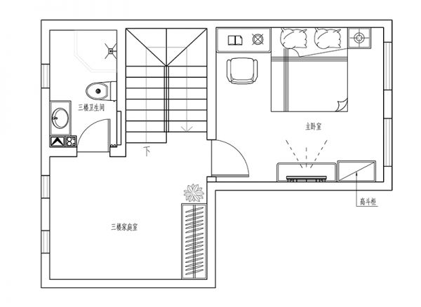
三层平面布置图
网址:首创国际半岛(300平)简美风格案例赏析 https://c.jiaju82.com/news-view-id-701853.html

