将中式风格的高贵与现代典雅的相互结合,演绎出
发布时间:2020-05-12 16:01
案例详情 业主需求:喜欢古色古香的氛围,但不能太沉闷。设计理念:针对客户需求,将中式与现代相结合,因为新中式风格是近年才在中国兴起的新型装饰风格。所谓新中式风格就是作为传统中式家居风格的现代生活理念,通过提取传统家居的精华元素和生活符号进行合理的搭配、布局,在整体的家居设计中既有中式家居的传统韵味又更多的符合了现代人居住的生活特点,让古典与现代完美结合,传统与时尚并存。预算说明:主材+施工=55万 主材品牌:瓷砖(诺贝尔),地板(书香门第),木门(TATA),橱柜(欧派),定制衣柜(古马克),洁具(科勒),暖气(太阳花),电器(史密斯)等
水墨画与鸟笼让沉闷的书房显得一丝灵气。
在整个设计中,胡桃木饰面成为空间的主角,深色调子可以很好的将中式风格的内敛含蓄沉淀下来。
将中式风格的高贵与现代典雅的相互结合,演绎出新东方主义。
没有运用繁琐的元素,只在焦点部位融入传统精髓,起到画龙点睛的作用。
女儿房主要以偏现代为主,粉色系列来衬托调皮可爱。
墙色温和和壁纸及镜子的造型,使空间不仅具有亲和力且视觉得到延伸。
透明窗帘及双人沙发搭配更体现空间的层次感。
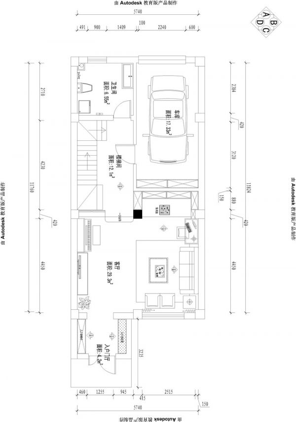
一层平面布置图
网址:将中式风格的高贵与现代典雅的相互结合,演绎出 https://c.jiaju82.com/news-view-id-701852.html

