润泽悦溪90平米地中海风格两居室婚房装修效果
发布时间:2020-04-15 18:01
案例详情 项目地址:北京市朝阳区小区名称:润泽悦溪建筑面积:90平米房屋户型:两室两厅一卫一厨装修风格:地中海风格设计师:桑春洋-元洲装饰总部主任设计师设计说明:本方案为润泽悦溪两居室设计方案,根据业主的喜好风格定义为地中海风格,居住一对80后年轻小夫妻,作为婚房使用,考虑了许久才下定决心把地中海风格作为这个居住之家的装修风格,整体格局变动不是很大,只是把原来的次卧室改成了一间有榻榻米的书房使用,整体家居的摆设以简单、突出地中海风格为主。
本方案为润泽悦溪两居室设计方案,根据业主的喜好风格定义为地中海风格。
居住一对80后年轻小夫妻,作为婚房使用,考虑了许久才下定决心把地中海风格作为这个居住之家的装修风格。
整体格局变动不是很大,只是把原来的次卧室改成了一间有榻榻米的书房使用,整体家居的摆设以简单、突出地中海风格为主。
简单的客厅沙发区,只做了一个简单的墙饰品。
入户口摆放了一个简单的衣柜,可装闲散之物。
客厅和餐厅直接做了一个有层次感的吊顶。
正面餐厅区域的效果
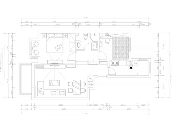
润泽悦溪平面布置图
网址:润泽悦溪90平米地中海风格两居室婚房装修效果 https://c.jiaju82.com/news-view-id-698162.html

