首开国风美唐150平地中海风格赏析
发布时间:2020-04-15 18:01
案例详情 项目名称:首开国风美唐 设计风格:地中海风格 设计单位:实创装饰集团整体家装:装修一口价、闭口合同家装类型:88系施工工期:35天工程面积:150平米房屋类型:3室2厅1厨2卫88系整体造价:125088元(设计+硬装)设计说明:拱、卷与贝壳的线条的运用,白色、蓝色与土黄的色彩搭配,加上实木木梁背的衬托,体现地中海风格的“蔚蓝色的浪漫情怀,海天一色、艳阳高照的纯美自然。
拱、卷与贝壳的线条的运用,白色、蓝色与土黄的色彩搭配,加上实木木梁背的衬托
在整个装饰上,到处都充满着和谐的温馨,让人心情舒畅,简单质朴的肌理墙面渲染着地中海的情怀,大自然的色彩就在这样的背景
客厅体现地中海风格的“蔚蓝色的浪漫情怀,海天一色、艳阳高照的纯美自然。
整个空间的区隔均由地中海建筑的典型元素拱门来过度,更有半穿凿或全穿凿方式塑造的室内“景中窗”做装点,视觉空间极富穿透力和流动性,自由开阔
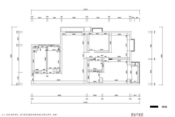
首开国风美唐150平地中海风格赏析户型图
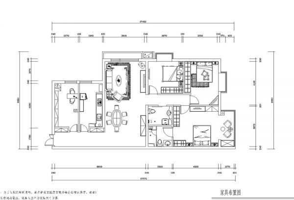
首开国风美唐150平地中海风格赏析户型图
网址:首开国风美唐150平地中海风格赏析 https://c.jiaju82.com/news-view-id-698161.html

