碟泉花园-350平米-法式风格
发布时间:2020-04-14 13:01
案例详情 业主需求:客户崇尚法国浪漫主义情怀,喜欢柔性装饰,契合了自在、随意、不羁浪漫的生活方式。设计理念:考虑实用性和舒适性,把整体空间连通,把每个小空间做联合,成一个大空间。使整体空间开阔,从而体现出法式生活的随性。把空间一个物件就是一道风景,貌似随意就是那么的合心意,从容淡然,有无私的包容和接纳,体现自然休闲的浪漫。顶上的石膏线和石材柱都加入了传统法式元素。地面的石材配合和石材波打线与顶面呼应,使整体空间协调。软装壁纸采用的是团花壁纸。是整个空间显得大气柔美。配合上法式曲线家具,使整个空间彰显出浪漫奢华之美。预算说明:基础装修+主材=150万元
客厅是家庭会客区域,所以在客厅上增加了更多的装饰,使空间更加奢华。电视背景墙采用了玉石,通过石材的自由纹理,来展现空间的自在。线条与造型的复杂,精益求精的细节处理,以及融入法式的生活元素,整体空间充分表现一种浪漫与惬意的生活品位。
挑空的一层餐厅,给人以开阔大气之感,米色大理石与咖色波打线的运用,给人以沉稳之感。精炼耐看的装饰线条,结合法式的家具饰品,雍容的艺术软装配饰,处处彰显出华贵,奢华但不张扬;餐厅与客厅连通,使空间体量饱满大气。
衣帽间俩排一字型通顶衣柜。满足业主的储衣功能。一边柜门上部采用玻璃材质,另一边采用镜面。从视觉角度使空间增大。顶面采用法式石膏花线。使空间更加时尚奢华。
主卧原始顶面是个斜屋顶。为了是整体空间协调方正,我把顶面做成了穹型顶。既美观又能保证空间的高度。床头背景也做了格子,满足客户在床上随手放东西的功能,中间内嵌手绘壁纸。使空间充满了自由浪漫色彩。
卫生间整体石材采用暖色西班牙米黄,搭配上地板石材拼花,使空间更富有生机。淋浴屏采用黄色金属包边,是整个空间的画龙点睛之笔。,不同质感的材料运用,材料与材料之间质感的碰撞,从而富有层次感,体现出時尚典雅、浪漫奢华的生活品味。
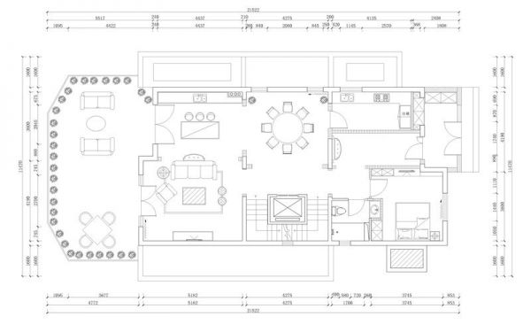
一层平面布置图
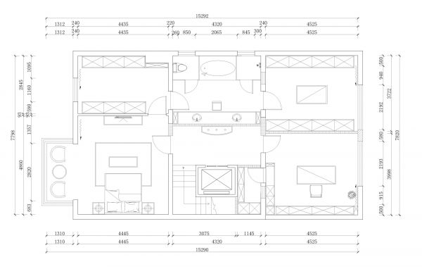
二层平面布置图
网址:碟泉花园-350平米-法式风格 https://c.jiaju82.com/news-view-id-697794.html

