段凌宇顶级设计师碟泉花园
发布时间:2020-04-14 13:01
案例详情 业主需求:业主喜欢新古典风格的房子设计理念:新古典风格预算说明:25
餐厅效果图
卧室效果图
南向客厅效果图
南向书房效果图
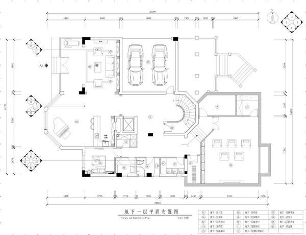
户型图
网址:段凌宇顶级设计师碟泉花园 https://c.jiaju82.com/news-view-id-697793.html

