富力悦居
发布时间:2019-05-08 15:01
案例详情 简约舒适,体现业主品味,格调。大量直线运用,较为大胆的色彩,营造出家的另类氛围。运用多元素风格,大量使用亮面材质,更好的体现奢侈,简约的效果
次卧:集合竖线配以紫色,有精致还俏皮
客厅:运用多元素风格,大量使用亮面材质,更好的体现奢侈,简约的效果
书房:书房为半开放,相对简单,顶面上凸空间更为立体
卧室:背景金属线条配稳重的白色给您以安静惬意的感觉
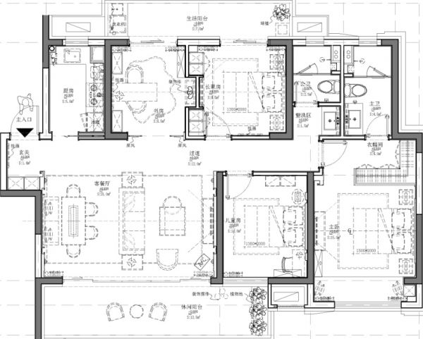
住房的平面空间布局图,即对各个独立空间的使用功能、可以直观的看清房屋的走向布局。可以弥补户型上先天不足
网址:富力悦居 https://c.jiaju82.com/news-view-id-644840.html

