想把它捧在手心的奶茶色家居
发布时间:2019-05-08 15:01
案例详情 如若,生活失去平衡,空間了無秩序,那麼人,以何種姿態立足于天地?而“以自我的真實”為根本的現代精神發展至今,畸變衍生出諸多娛樂至尚,物質至上的逐流之輩。對於以空間設計師自居的我們而言,空間誕生的本質又在哪裡?
客厅:墙面以奶茶色为主色调,以黄色装饰画做点缀,使整空间更加温暖明媚,而不失活力。顶面的周边吊顶整个空间更显层次,
餐厅:餐厅的场景考虑到与客厅在同一空间共存,客厅与餐厅墙面也同一颜色使整个空间场景更加连贯,同时也时我们其他亮点可以凸显出来,如我们餐边柜就用了原木色,墙面的装饰画与客厅一致的现代抽象画相互应,整个空
书房:书房同样时奶茶色,深胡桃的书柜陪白色的白色的柜门中间用中黄的柜门做跳色,打破了空间原有的沉寂。使整个阅读工作区域充满了生机。
主卧:以纯粹的设计角度去组装整个空间,注重整个空间的串联功能。以明朗的暖黄为主,米灰为辅的色系,塑造干净明快的空间格调,达到“简约风也可以活泼俏皮”的装饰效果。
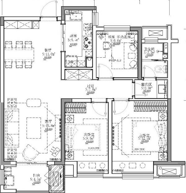
住房的平面空间布局图,即对各个独立空间的使用功能、可以直观的看清房屋的走向布局。可以弥补户型上先天不足
网址:想把它捧在手心的奶茶色家居 https://c.jiaju82.com/news-view-id-644839.html

