上地西里老房翻新美式风格
发布时间:2023-06-02 20:00
案例详情 该设计教育传统的现代简约风格更加丰富化,更符合当代人对生活的享受和态度;空间设计的表现,简约,婉转,舒适,优雅。丢掉过于复杂的表现方式,用简单的装饰线条体现生活小细节
温馨布艺沙发,线条感分明的墙面造型,简洁明亮。简洁明晰的线条和优雅,得体有度的装饰,烘托一种慵懒悠然的气氛。
以整体奶白色调为主,黑色墨绿色作为点缀相互搭配的餐厅设计,给人一种精致舒适感;墨绿色的座椅点缀让空间显得更加优雅,餐厅上方简单的吊顶设计表现出空间的舒适。
空间整体采用素色设计,注重格局空间的美感,让装饰自然化,隐藏化。用小范围的亮色提亮部分空间明度,搭配深色系的窗帘。让整个空间不会显得过于沉闷,搭配上金属质感的细节,简约优雅的色调搭配下,打造出精致高雅的氛围。
儿童房的设计元素没有拘泥于一个简单的儿童元素堆叠,而是对于空间整体美观和实用性结合的把控;对比度较大的色彩设计,满足儿童的好奇心;
在厨房布局的设计方面着重考虑尺度,收纳,动线三大方面;满足充分的活动空间,具备丰富的储藏空间,有足够的操作空间和流畅的操作动线;
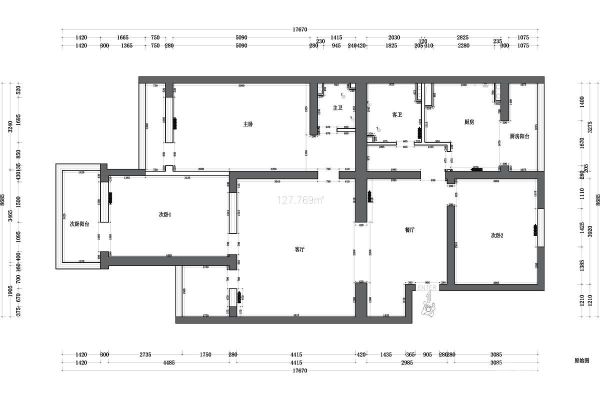
该户型是三居室,户型布局较为规整;采光通风性能较好,房间区域功能齐全。视野比较通透,空间尺度感更好;拥有独立主次卫生间,独立书房,方便生活使用习惯。
网址:上地西里老房翻新美式风格 https://c.jiaju82.com/news-view-id-845863.html

