农村自建房平顶设计图 平顶自建房怎么设计好看
平顶房屋在设计时只要注意配色和布局问题,那么居住起来也是非常舒适的。那么平顶自建房怎么设计好看呢?下面我们就为大家推荐3款农村自建房平顶设计图,希望你们会喜欢。
农村自建房平顶设计图
房屋基本信息:
开间:14米
进深:13.5米,
建筑面积:190平方米
房屋层数:一层

图片描述:这是一套现代风格的平顶房屋,外墙立面以白色真石漆为主,再搭配上红色的墙体和大面积落地窗设计,既可以让房屋采光和通风更加良好,又可以让色彩更加丰富,给人眼球一亮的视觉感。此外这款房屋的面积比较大,除了可以满足用户的基本需求之外,还可以设置个小院,挖个游泳池,这样就非常完美了。

户型功能布局:该房屋共设计了三间卧室,其中一间是小套房,一间书房,客厅、厨房、吃饭厅和独立厕所。
农村自建房平顶设计图
房屋基本信息:
开间:13.84米
进深:11.24米
占地面积:151平方
建筑面积:276平方

图片描述:这套平顶房屋,外墙立面采用了黄白灰三种颜色进行搭配,这样既可以让房屋造型更加的丰富,又可以让房屋更有层次感。而大范围落地玻璃窗设计,可以让房屋的采光和通风更加良好。平顶屋顶的设计,让房屋更加时尚。

户型功能布局:三间卧室、客厅、喝茶室、书房、换衣间、吃饭厅、留有偏门的厨房以及顶层露台。
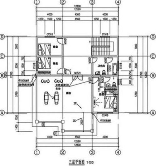
农村自建房平顶设计图
房屋基本信息:
开间:12.56米
进深:12米
入户门宽度:4米

图片描述:这款房屋看起来比较复古稳重,外墙立面以灰色复古文化砖进行装饰,再配上白色的罗马柱和灰色的屋顶,则可以让房屋看起来更加的大气美观。客厅的窗户采用了大落地设计,造型精致,一下就将房屋品味提升了几个档次。
户型功能布局:
从入户门进入之后就是堂,左侧是客厅,右侧是套房,另外还有厨房、吃饭厅、收纳室和厕所。
二层有一间带阳台的客厅,两间大卧室,两间小卧室,大卧室中一间带阳台、一间带厕所,两间小卧室面积大约在12平米左右,适合做儿童房。
三层设置了一间套房和两间小卧室、大露台。此外还有屋顶的大片空间等着你去开发和使用。

文章总结:好了,关于农村自建房平顶设计图以及平顶自建房怎么设计好看的相关知识就介绍到这里,有需要了解更多资讯的朋友,请继续关注齐家网,后续我们将有更好、更精彩的内容为您奉上。
什么,装修还用自己的钱?!齐家装修分期,超低年利率3.55%起,最高可贷100万。立即申请享受优惠
网址:农村自建房平顶设计图 平顶自建房怎么设计好看 https://c.jiaju82.com/news-view-id-792505.html

