2款新中式自建房设计图 中国风的设计让人惊艳不已
随着古装剧的流行,新中式建筑也进入了人们的眼球,而新中式在设计时要注意很多问题。那么新中式自建房怎么设计呢?下面就跟着小编一起来看看吧!

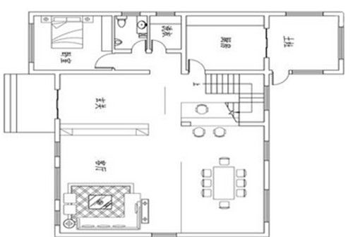
新中式自建房设计图(一)
占地大小:233㎡
建筑占地:16.9m×13.8m
建筑面积:430㎡
房屋结构:砖混结构
建筑整体采用新中式风格,造型上以门厅及双层露台的搭配强调立面层次感。窗框造型强调垂直线条感,增强立面延伸感,使得整体效果更显庄重大气。
图片描述:这款房屋整体看起来非常的时尚大气,独特的造型+双层露台设计,能让立面更有层次感。窗框垂直的线条,能增加立面的延伸感,让整个房屋呈现出一种庄重大气的视觉感。

功能布局:
一层为公共活动区,采用的一体化设计,面积宽敞南北通透,良好的格局让室内采光、通风效果极佳。而西北侧独立设置的土灶坊与厨房连接,方便业主就餐。

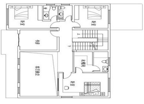
二层为居住区域,设置了多间卧室,可满足业主的居住需求。此外还增加了书房和衣帽间,方便业主日常使用。客厅采用了通高的形式,既增强了空间的延伸感,又可以让二层空间与一层形成更多沟通。

三层为多功能区,以楼梯来划分空间,西侧为活动室和观景露台,西侧设置了两间卧室和书房,南侧为套间式主卧,让居住功能更加完整。

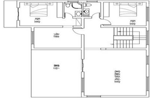
新中式自建房设计图(二)
占地大小:117㎡
建筑占地:11.7m×10m
建筑面积:266㎡
房屋结构:砖混结构
图片描述:这款房屋色系以白黑为主,造型上利用东西露台来增强房屋的层次感,再配上大量垂直线条的运用,让房屋更显豪华大气。

功能布局:
这款房屋采用的是三开间形式,通过中间的走廊将空间划分为南北区域。由于占地面积有限,对各空间进行了更明确的划分。一层东北侧通过博古架分隔独立的餐厨空间。西北角设置了楼梯间和公共卫生间。一体化的南侧客厅和茶室,方便业主接待客人。

二层客厅通高的设计,让视野更加的开阔,西南侧和东北侧设置了多个卧室,可满足业主的居住需求。北侧搭配起居室,丰富了业主的休息生活。东南侧露台既方便业主晾晒衣服,又方便业主欣赏室外的美景。

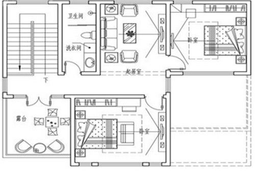
三层格局与二层几乎一样,西南侧增加了露台,使房屋周边的景观尽收眼底。南侧和东北侧的卧室,可以供客人居住,三层起居室可以改成开放式书房或休闲厅使用。
文章总结:好了,关于3款新中式自建房设计图的相关知识就介绍到这里了,有需要了解更多资讯的朋友,请继续关注齐家网,后续我们将有更好、更精彩的内容为您奉上。
什么,装修还用自己的钱?!齐家装修分期,超低年利率3.55%起,最高可贷100万。立即申请享受优惠
网址:2款新中式自建房设计图 中国风的设计让人惊艳不已 https://c.jiaju82.com/news-view-id-780736.html

