名雕佰恩邦|深漂小两口的甜蜜小窝,这装修风格是你pick的吗?
发布时间:2021-08-16 16:02

今天分享一套特别适合在深小两口住房的装修案例,简约中带着点浪漫的甜,让小户型也能享受大户型的宽敞舒适。
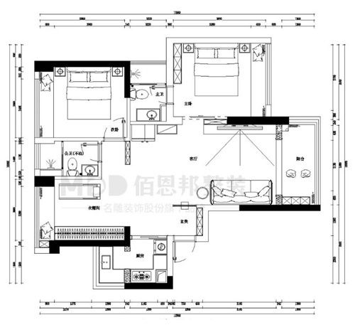
▲案例原始户型图
项目信息
设计风格:北欧风格
项目面积:90平米
项目户型:3房2厅1厨2卫
项目类型:全屋整装
服务团队:名雕佰恩邦
▲名雕平面设计图
▲名雕佰恩邦整装案例
“我们下班啦!”
顺道在菜市场买了彼此爱吃的菜
设计师的改动总是这么得心
将原有的墙面推去
厨房门后移不仅结构上更合理
视觉上也显得更美观宽敞
我入户脱鞋进厨房随手放下食材
你整理整理鞋子玄关柜
完了我们一起准备晚餐
▲名雕佰恩邦整装案例
看书的地方一定要有阳光
将阳台打通,靠沙发这面做通顶书柜
满满的书白天黑夜沐浴天地精华
我们从中汲取时光的馈赠
内心笃定,精神富足
于午后煮一壶清茶,抽一本读物
好不惬意。
▲名雕佰恩邦整装案例
喜欢的瑜伽?
这个位置也是不二之选
每个早晨,先生在沙发上看报纸
我在瑜伽垫上优美拉伸
不需要过多的言语
彼此安静地呆着,就很美好
阳台与客厅空间互借的魅力久住亦知。
▲名雕佰恩邦整装案例
宽敞的客厅
温润的实木地板
让我们赤着脚丫来一支华尔兹
累了就窝在沙发上小憩
甜蜜蜜,蜜蜜甜。
▲名雕佰恩邦整装案例
浪漫的元素,时尚的装饰
配色大胆耐看不易过时
简约的设计搭配北欧风家具
半开放式的大衣柜
保留飘窗留着做更多安排
妥妥的年轻人喜好款。
▲名雕佰恩邦整装案例
一屋,两人,三餐,四季
有家有你,每天都是七夕
和你的甜,相约在每个此刻里
名雕佰恩邦整装祝愿
天下有情人终成眷属。
—END—
网址:名雕佰恩邦|深漂小两口的甜蜜小窝,这装修风格是你pick的吗? https://c.jiaju82.com/news-view-id-767690.html

