北京风景 现代简约
发布时间:2021-03-23 12:01
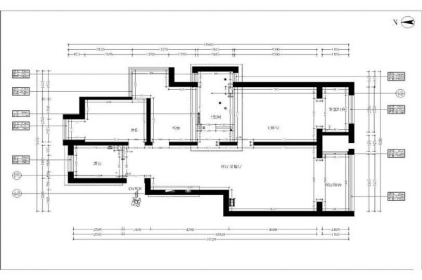
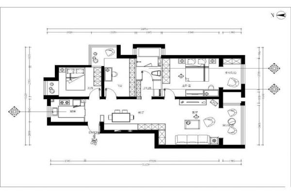
案例详情 本文案是111的户型,客户喜欢黑白色灰色调的搭配,简约风格的家具,在颜色搭配上也很简单。主要以亮灰色为主,没有太重,太跳的的颜色。以简洁的造型和别出心裁的摆放,打造温馨,时尚的家居空间。
客厅,餐厅,走廊的主色调为淡色,地面采用白色玻化砖铺地,墙面采用牡蛎白的乳胶漆涂饰,客厅天花采用的艺术的小吊灯,玻璃餐桌,就餐时创造一个温馨浪漫的氛围。客厅中央采用一个大吊灯,周边有凹槽内藏粉色小灯管,走廊的凹槽内藏白色小灯管,起个方向引导作用,另外也可成为整个房间的普通照明。白天阳光通过白色地板的反射使得整个空间更加明亮,增加空间的视觉感官,窗帘选择配置了菊花的亚麻窗帘,沙发可选择翡翠绿系列,整个公共空间体现的是人淡如菊的平和而淡定的心态,而粉色的小灯管和彩色吊灯灯光的渲染又给这淡定的环境
中心色为黄、橙色。选择橙色地毯,窗帘、床罩用黄白印花布。沙发、天花板用灰色调,在搭配一些绿色植物为衬托,使居室充满惬意、轻松气氛。
卫生间采用防滑地砖,整个空间宽敞、整洁,更体现出主人对生活的执着追求。简洁的表现形式来满足人们对空间环境那种感性的、本能的和理性的需求,这是当今国际社会流行的设计风格--简洁明快的简约主义。而现代人快节奏、高频率、满负荷,已让人到了无可复加的接受地步。
家具配置上,白亮光系列家具,独特的光泽使家具倍感时尚,具有舒适与美观并存的享受。在配饰上,延续了黑白灰的主色调,以简洁的造型、完美的细节,营造出时尚前卫的感觉。
儿童房 让童心与温馨共同存在 木色的地板,淡蓝色的榻榻米和墙的颜色互相呼应
室内空间开敞、内外通透,在空间平面设计中追求不受承重墙限制的自由。
尽可能不用装饰和取消多余的东西,认为任何复杂的设计,没有实用价值的特殊部件及任何装饰都会增加建筑造价,强调形式应更多地服务于功能。
网址:北京风景 现代简约 https://c.jiaju82.com/news-view-id-747054.html

