东易日盛席前惠作品 | 回归纯粹
本案户型为叠墅,对原始结构重新做了规划和调整,在满足业主一家功能需求的基础上,以更开阔的角度,展示生活的多元场景,呈现高调的生活美学氛围。
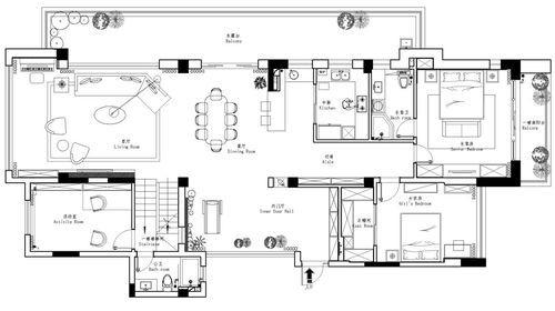
在格局规划上避免了小块区域的划分,尽量以开放的形式融入公共区域,凸显优越的空间感,同时,以中西厨、双主卧等形式满足功能需求。设计手法上大量运用体块、穿插、线条等元素,打破空间的局限,让空间更有活力、延展性。
室内高度既定而宽度是可延展的,将公共区域打造成横轴形态,动线涵盖了客厅、餐厅、厨房等区域,整体利落连贯,视线通透开阔,空间延伸感大大提升。
客厅将北面阳台包入室内解决了客厅进深局限的问题,更换大面积落地窗。将北面湖景无缝衔接到室内。电视背景墙采用鱼肚白大理石和木饰面的材质碰撞,赋予空间亲切的肌理触感。透过大面积落地玻璃窗,将盎然的生机回馈室内,如同置身于桃花源之中,享受阳光与清风环绕的幸福感。
中西厨的设计满足了两代人居住的使用需求。中厨拥有完善的厨房设备,各种菜系都能驾驭,无惧油烟;西厨区域以定制的长吧台融入公共区域,享受与亲友无拘束的互动乐趣,无论是视觉上还是使用上都拥有绝佳体验。
案例名称:滟紫台
设计类型:全案设计
案例地址:南京市江宁区滟紫台
设计师:席前惠
设计公司:东易日盛
作品风格:现代
面积:308㎡
户型:叠墅
户型解析:户型优点:房间采光面多,采光充足;小区绿化率高,空气质量优良;房间层高高(3.2米);户型方正,面积浪费较少;临湖景观大露台。
缺点:户型错层较多,楼梯踏步多且陡;
设计调整策略:
1、将室内外设计做到统一融合,将大面积露台设计作为室内景致的延展空间。
充分发挥户型层高优势。
调整楼梯踏步。
设计说明:我们久在城市生活,看惯了五彩缤纷的热闹世界,在回到家里的时候,格外向往一个纯粹自然的温馨空间。
全案设计师介绍:
席前惠
从业经验:19年
擅长风格:现代简约、新中式、轻奢混搭、欧式新古典、美式
个人简历
毕业于南京林业大学(家具设计与室内装饰专业)
进修于清华大学室内高级研修班、中赫时尚软装设计班。
具有法国、意大利、美国、日本、阿联酋及北欧国家游学经历。
曾担任南京金审学院客座讲师、集团内部讲师
东易日盛装饰集团高级墅装专家
中国建筑及室内空间设计专家
中国建筑装饰协会高级室内建筑师
中国建筑装饰协会高级住宅室内设计师
中国建筑协会陈设艺术设计师
个人荣誉
2019年度中国设计星总决赛“南京设计星
2017年国际环艺创新设计作品大赛别墅豪宅空间类金奖
2015年中国筑客网设计大赛“全国十大设计师”奖
2014年集团“优秀园丁奖”
13年中国室内装饰协会版发“全国优秀室内设计师”称
2013年集团“最佳设计作品”奖
江苏省室内设计大赛优秀作品
2009年集团“十佳设计师”称号
2008年亚太室内设计双年大奖赛提名奖
2006年中国“美化家居”大赛优秀作品奖
2005年集团“最高客户满意度”奖
2004年中国“美化家居”大赛优秀作品奖
服务楼盘
万科安品园舍、中冶锦绣华府、涟城、升龙桃花园著、金鼎湾状元府、中海桃源里、南京院子、九月森林、美林墅、玛斯兰德、百家湖别墅、绿城玫塊园、运盛美、颐和南园、国信自然天成、金鼎湾如院、金鼎湾今朝天下、中航樾府、山水华门、罗托鲁拉、九玺台、秦淮绿洲、奥体新城、仁恒江湾城、西国际、德基世贸中、宏图上水庭院、柏悦瀾庭、钟鼎山庄、复地御钟山、保利紫品山、栖园、万山庭院、藻水卧龙湖小镇、藻水世纪天成、碧桂园凤凰城....
责任编辑:李召莉网址:东易日盛席前惠作品 | 回归纯粹 https://c.jiaju82.com/news-view-id-744085.html

