景粼原著 现代简约
发布时间:2021-03-01 22:01
案例详情 此方案是极简主义的装修风格,因为业主喜欢简单的生活方式,不需要过多的装饰,因此,极致而又实用就成了第一考虑因素。在极简设计的理念下,去运用一部分装饰画、一些艺术品来点缀,更能凸显空间的灵动性。每个区域都有储物功能,满足正常生活的需要,但是都采用隐形的处理方式,既是造型又是储物柜。
这是另一种视线下的一层空间,客厅与餐厅与厨房在一条纵线上,既很好的利用了空间,又让整个空间很灵动,整体风格也相应相成,很是极简。
客厅与玄关的软隔断分离法,使整个空间功能既明确又独具创意,大量的白色的运用,也会更加敞亮,更加简洁明快,给人很舒适的感觉。
这个区域是地下室的挑空设计,整面5米多高的大书柜,既气派又实用,让整个区域添彩。不用摆放很多家具,一个舒适的沙发即可,可以跟朋友在这里聚会,又可以带孩子一起玩耍,会让人觉得是自己的一片天地。
从这个角度可以看到餐厅与厨房的关系,厨房的透明推拉门,使得整个区域光线更为明快。也更加相互成就,通透的感觉充斥着整个一层。
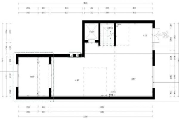
这是一层的原始户型图,没有明确的玄关处,储物量远远不足,经过设计改造,运用软隔断进行玄关和客厅的划分,利用背景装饰柜,进行餐厅和客厅的划分,让整个空间更加具有实用性。
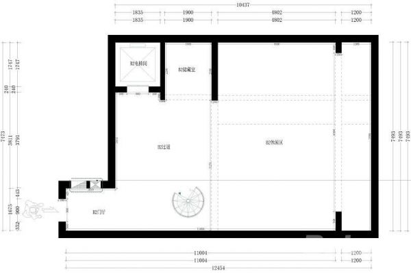
这个是地下二层的原始户型图,一个大开间,没有具体的把功能区域,经过设计改造,有了休闲区、水吧区、储物区、工具间等,很好的利用了空间,也让动线更简洁。
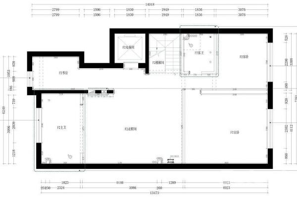
这是二层的原始户型图,格局划分不是很合理,也没有体现出别墅的特点,经过设计改造,将此空间设计成一个主卧+衣帽间+卫生间,一个儿童房,一个钢琴室,很好的满足了客户的需求。
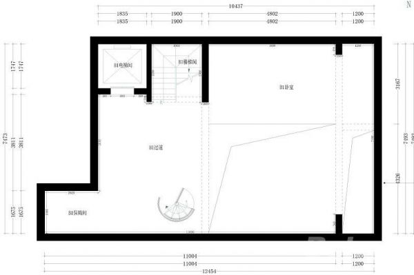
这是地下一层的原始户型图,保留了挑空的设计,使得空间更加灵动,又增加了一个旋转楼梯,功能上留了卧室、保姆间、保姆卫、洗衣房等,让整个空间的利用率加大,满足可客户需求。
网址:景粼原著 现代简约 https://c.jiaju82.com/news-view-id-743523.html

