65㎡北欧风格,温馨舒适
发布时间:2021-02-04 12:01
案例详情 这是一套面积为65平米的北欧风格小三居,一家五口,业主要求房子的装修要考虑父母居住的舒适度还有孩子学习生活的私人空间,以及日常收纳的需求。所以设计师根据业主的需求对户型进行了功能的优化调整。丝绒、金属、木纹、皮革、灯光,每个材质的加入,都让这个空间的耐看度和精致度得到了提升
简约的北欧风格设计,客厅色彩搭配年轻浪漫,通过精致的细节,营造出温馨舒适且有品质感的生活空间。
沙发背景墙可以说是客厅的亮点,选择了温暖又恬静的珊瑚色,搭配灰色布艺沙发,色彩层次丰富。
阳台一侧打造成收纳柜,另一侧是个阅读区。墨蓝色窗帘搭配粉色懒人沙发,让色彩有了对比和层次。
将阳台空间纳入客厅,做成了地台,客厅看上去更宽敞,阳台休闲实用两不误。
餐厅使用网红的泡泡灯,简洁有质感,满足功能性的同时,添加了设计感 ,玻璃质感加上灯光温度折射出朦胧美。
主卧清新淡雅的色调,安静优雅,比较容易营造舒适的睡眠环境。金色衣柜拉手、壁灯、吊灯,得升了卧室空间的品质感。
次卧是为业主父母准备的房间,简单纯粹清净,绿色为基调,木质采用白橡为主,引入了天然清新的气质。
灰色调的儿童房,点缀蓝色和黄色,增添空间的活泼与活力。墙面的三角形隔板搭配立体的长颈鹿墙饰,让儿童房充满了趣味性。
厨房用的灰色墙砖,既简洁大方又耐脏。操作台做了高低台面的设计,洗菜刷碗再也不用弯腰了。
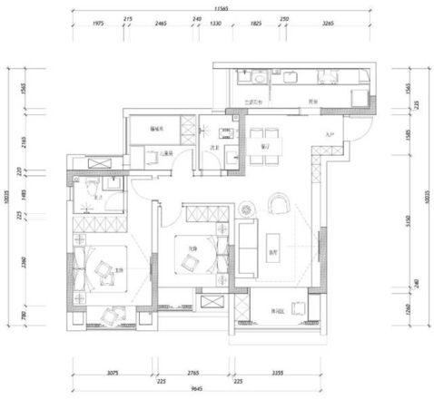
【户型图】 家再小,也要为自己的家注入更多的灵魂,一家人其乐融融、温馨无限,才不辜负你所期待的诗意生活
网址:65㎡北欧风格,温馨舒适 https://c.jiaju82.com/news-view-id-741782.html

