90平米老房翻新,空间轻巧舒适自在放松
发布时间:2021-02-04 09:01
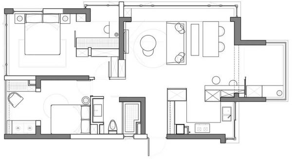
案例详情 这套89㎡装修案例了,并没有因为空间有限而紧凑压抑,相反轻松舒适、敞亮通透。三房两厅一卫,有生活又有工作,并没有因为空间有限而紧凑压抑,相反轻松舒适、敞亮通透。三房两厅一卫,有生活又有工作,你觉得实用吗?原始结构可以看出,空间被分割得比较琐碎,并且卧室和卫生间都过于紧凑,日常生活还是很不方便的。好在有一个可以拓展的平台,让装修有了更多的可能。客厅以灰、白、木色为主,色彩份量拿捏恰到好处,顶面灰色艺术漆很好地平衡了木地板,让整体不呆板,还增加空间趣味性。
客厅以灰、白、木色为主,色彩份量拿捏恰到好处,顶面灰色艺术漆很好地平衡了木地板,让整体不呆板,还增加空间趣味性。
利用色彩不同,做视觉隔断,既保持空间通透,又界定了空间功能,实现相对独立效果。简单吊顶设计,带出空间层次,简洁宽敞又有档次。
电视墙不同的材质和色彩,造就了更有趣的视觉效果。圆形洞洞设计,增添了趣味性,让整体效果不单一。电视墙结合了壁龛设计,实现电视柜功能,整洁统一又节省空间。
为了保持空间通透,没有做隔断设计,仅用三座沙发,很自然地将客厅和餐厅分隔开。
大面积采光窗,绝对是小户型可遇不可求的,舍弃布艺窗帘,改用百叶窗,不仅灵活可控,还有着高颜值光影效果。简单精致的长桌,搭配上两把单椅和长凳,简单实用空间还清爽。
厨房采用开放式格局,很好地将空间串联起来,让居家动线更流畅。绿色艺术漆界定吧台区,提升居家情调,同时又可以作为厨房操作台的补充。
背景墙局部设计一个内切斜面,嵌入灯带设计,实现光影明暗交替效果,加上线性吊灯设计,简单有趣又不失品位。
卧室拆除隔墙,将琐碎空间重新整合规划,将原有卫生间改造成了梳妆台和衣帽间,利用长虹玻璃门隔断,保证独立性也不影响空间通透效果。
考虑到当前次卧使用频次不高,以留白设计手法,打造成一个简单的白色空间,通过软装的点缀,丰富空间色彩。当然简白空间设计,也为后期改造,提供了更加弹性的空间。
原始结构可以看出,空间被分割得比较琐碎,并且卧室和卫生间都过于紧凑,日常生活还是很不方便的。好在有一个可以拓展的平台,让装修有了更多的可能。
网址:90平米老房翻新,空间轻巧舒适自在放松 https://c.jiaju82.com/news-view-id-741748.html

