现代主义理性,而看似不太正经的孟菲斯风则无形
发布时间:2020-08-31 19:01
案例详情 主注重一家三口情感互动性,将格局安排为设计重点。首先解决因建筑结构造成壁面不平整问题,让空间感回归方正,并运用圆弧天花造型,化解大樑于无形;接着将客、餐厅原有的三房改为两房格局,打开空间拉近彼此生活距离;电视墙后方规划书房机能,小孩学习时,大人也能适时给予关注,带来良好家庭互动;私领域也善用畸零角落,利用转角空间规划收纳、梳妆台,坪效倍增!
屋主喜欢的简洁的吊顶,用细腻的格子线条,沙发背景,则选择了立体感超强的PU框线,搭配圆弧线条的顶灯,营造出大气而精致的氛围,也诠释着“方与圆”的人生哲理。
现代主义理性,而看似不太正经的孟菲斯风则无形中输送温暖,可能有些萌,可能有些怪,但绝对是可以令人快乐的幸福多巴胺,巧妙化解现代风里的冷淡因子。
造型感极强的吊灯也让灰调空间免去沉闷,无论是下厨、用餐抑或是与孩子互动,都是记忆里的美好时光。
次卧暖色调与暖光源同样带来柔和舒适的质感,欢快活泼的橙色配合原木色为现代风平添一份温馨感。
主卧以较深的背景给予屋主低调内敛的睡眠空间,柔和的光源点亮一室静谧,内卫利用隐形门藏于背景中,确保整体和谐融洽。
并整合量体与柜体、赋予利落而实用的机能,且做出活动式轨道电视墙,与传统衣柜相互整合,使坪效运用更为极致
通过扩大玄关区域,增加入户鞋柜空间,提升入户的大气感。设计上以客户性格特点及爱好为核心突破点,把空间功能合理分区并完善,将空间意形融合。
厨房空间特意设了岛台设计,大面积的使用白色瓷砖提高了真整个空间的亮度以及整个空间的整洁度和格调
卫生间的瓷砖以及洁具选材都时为了凸显出欧式风格的效果,各种拼花搭配使得空间非常活跃。
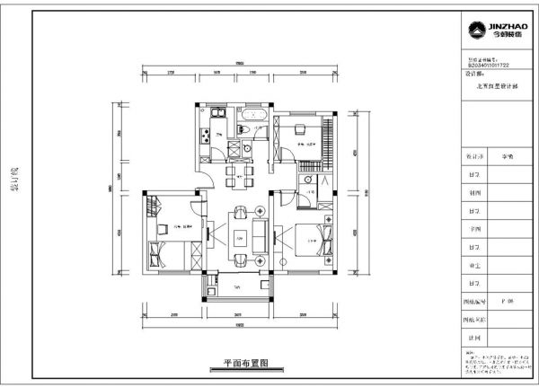
【户型图】 将格局安排为设计重点。首先解决因建筑结构造成壁面不平整问题,让空间感回归方正,并运用圆弧天花造型,化解大樑于无形;接着将客、餐厅原有的三房改为两房格局,打开空间拉近彼此生活距离;电视墙后方规划书房机能,小孩学习时,大人也能适时给予关注,带来良好家庭互动;私领域也善用畸零角落
网址:现代主义理性,而看似不太正经的孟菲斯风则无形 https://c.jiaju82.com/news-view-id-719197.html

