阳台改飘窗柜,79㎡小户型
发布时间:2020-08-17 11:01
案例详情 北欧风格以其简单而著称,并影响到后来的"极简主义"、"简约主义"、"后现代"等风格。北欧风格风格家居,浅色、干净、清爽的感觉使家庭空间完全凉爽。客厅的布局重点集中在家具的选择以及颜色和织物的匹配上。和谐和对称的技巧使布局的每个细节都感觉舒适。这样紧凑不拥挤的布局,真是完美小户型
客厅通刷浅蓝色漆,整体色调清新怡人,让人心旷神怡。客厅的阳台做了飘窗柜,不仅能收纳,也可以作为一张床、一个阅读休闲区,实用性很强
餐厅靠墙做顶天立地收纳柜,白色+原木色经典搭配,旁边靠门位置留着放换鞋凳,避免了进门被全包围的拥挤感。
玄关做了半高的鞋柜,上方是玻璃隔断,解决了穿堂煞的问题,又能保证玄关采光。
电视墙没有太多造型,把电视机挂在墙上,摆上电视柜,简单但很耐看。
厨房户型不规则,利用收纳柜、冰箱,安装了L型橱柜,整个空间以白色为主,搭配了灰色操作台面,简洁干净。
儿童房定制的多功能榻榻米,衣柜、书桌、床组成一个整体,而且书桌正对窗户摆放,采光效果更好。
主卧室墙面刷浅灰色,矜持沉稳的浅色调,床头装饰画鲜艳色彩带来空间暖意
主卫安装了浴缸,丰富了家里的洗浴设施,墙面打壁龛收纳,很实用
主卫墙面铺仿大理石瓷砖,地面是经典黑白配色花砖,洗漱盆外凸,让洗漱台和墙面柱子齐平,空间更规整,也让马桶区更舒适。
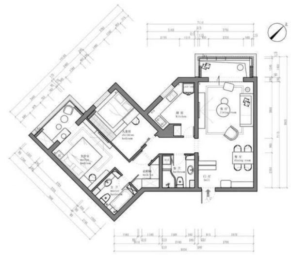
这是一个不规则的户型,但是布局紧凑,不方正的空间也巧妙布置成厨房、衣帽间,充分利用了尖角
网址:阳台改飘窗柜,79㎡小户型 https://c.jiaju82.com/news-view-id-716472.html

