72㎡一家两口居住,父母有时候会过来居住
发布时间:2020-07-03 20:01
案例详情 通州新城东里一家两口居住,父母有时候会过来居住,喜欢现代主要色调为黑白灰以及使用金色点缀空间。设计简单不失情调色彩选择在满足后现代风格的基础上参加了一些色彩感,使整个活动空间非常活跃且不失现代高贵感。白色家具增加活跃度黑色使整个空压下来更为稳重,金色点缀整个空间增加高贵的色彩设计依旧沿用了客厅色调,整体统一和谐
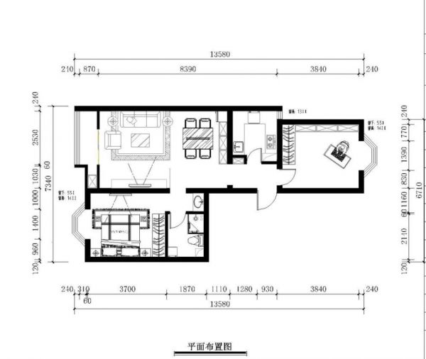
空间有足够的采光,在后期的改造上把客厅阳台纳入整体空间,既保证了客厅的空间使用尺寸,又让整体空间看起来大气明亮。
客厅采用后现代风格,主要色调为黑白灰以及使用金色点缀空间。
卫生间的干湿分区为更舒适的空间享受奠定了基础,搭配一个落地的浴缸,回家累了可以躺在这个浴缸里好好放松放松。
睁开眼就能感受到阳光的温暖和煦,纱帘的自由舒展,辽阔的空间如此鲜亮透明,精致的设计基调下烘托出玲珑简洁的空间;有精致也有朴实,有随意也有匠心,感受浪漫和理性的完美结合
主卧室的设计依旧沿用了客厅色调,整体统一和谐。
餐厅吻合后现代的设定,设计简单不失情调。
餐厅吻合后现代的设定,颜色选择上没有使用太深的颜色,是较浅以及搭配整体的选择
电视背景墙上采用土色石材,带来高贵感官,皮具沙发不失经典的韵味,又为整个空间纳入现代感。
次卧大胆选用反色调,并增加了一些原木色,也是为了将来父母来居住时显得更加温馨。
色点缀整个空间增加高贵的色彩设计依旧沿用了客厅色调,整体统一和谐
网址:72㎡一家两口居住,父母有时候会过来居住 https://c.jiaju82.com/news-view-id-709943.html

