64㎡简约一居室 暖色调更显温馨
发布时间:2020-06-22 09:01
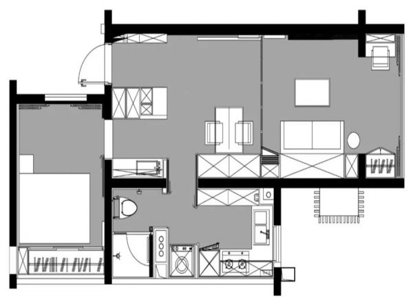
案例详情 这是一套建筑面积64平米的小户型,功能性设计,线条简约流畅,色彩对比强烈,这是现代风格家具的特点。由于线条简单、装饰元素现代风格家具需要完美的软装配合,软装到位是现代风格家具装饰的关键。居室空间是依据互相间的功用关系组合而成的,而且功用空间互相浸透,空间的应用率到达高经过家具、吊顶、空中资料、陈列品以至光线的变化来表达不同功用空间的划分,而且这种划分又随着不同的时间段表现出灵敏性、兼容性和活动性,如休憩空间和餐饮空间经过一个钢构造的夹层来分割,阁楼上的垂幔吊顶又限定了床的范围,这是典型的现代空间设计手法。
客餐厅被分成了两个区域,中间加上折叠门作为隔断,顶部的吊顶也没有连着设计,餐厅侧面的墙上做了穿衣镜,让空间更显宽敞。
卧室内部依然是以木色为主,嵌入式的衣柜搭配角落的搁架,满足不同的收纳需求。灯光都被藏进了吊顶之中,用灯带和筒灯来代替吊灯,显得更加简洁。
整个客厅的空间不大,所以设计师选择了把阳台也包进客厅内,电视柜做了悬空的款式,底部留出的空间还可以摆放一些收纳盒,增强收纳能力。
入户玄关走廊过后就是餐厅和客厅空间,餐厅处做了嵌入式的餐边柜,中间加上镜面更显时尚,厨房和卫生间之间同样做了嵌入式设计,把洗衣机放在这里。
厨房延续了客厅的原木风设计,空间也挺宽敞的,做了个U字型的橱柜,把收纳放在了操作台上,角落也做了开放式的搁架。
米灰色的双人沙发,搭配高低台面的茶几,而边几上摆有小鸟饰件,配合沙发墙一幅简约装饰画,呈现出简单轻松的画面。
卫生间的干区位于卧室房门外,镜柜搭配台上盆的设计,再加上大理石质感的台面,在柜底藏光的烘托下,展现出精致优雅的视觉感受。
床头柜也被舍弃了,直接从床上延伸出一小块的隔板,简洁而又实用。拼色的硬包床头背景墙上有着金属造型的装饰,更加有奢华感。
在和客厅相连的阳台处,设计了一个小书房的空间,方便屋主在家处理一些工作上的事情,另一侧就是到顶的柜子,小户型的收纳设计要尽量利用角落空间。
此户型空间划分清晰明确,格局搭配得当,空间利用合理,居住方便。
网址:64㎡简约一居室 暖色调更显温馨 https://c.jiaju82.com/news-view-id-708135.html

