80平米新中式案例,温馨舒适
发布时间:2020-06-14 09:01
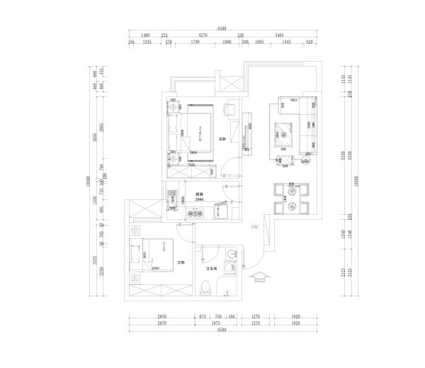
案例详情 业主需求: 常住人口两人,我的装修预算是9万左右,室内面积为80平方米,要求新中式风格,温馨舒适,又不能老气沉沉,设计新颖。 设计说明: 这个案例是新中式风格,业主很喜欢中式的一些元素,又不想空间太老气沉寂,因此我以中式新古典的表现方式来呈现,主要以素色壁纸,搭配壁画,用金属条收边做圈框,贯穿整个空间。 预算说明: 工程造价:4万(不含主材) 设计费用约5000元; 主材由业主自行采购约5万元
客厅贯穿的线条使顶、地、墙的关系更加协调统一,素色壁纸搭配黑色金属线条令整个空间整齐且更有层次感,细节值得推敲。
次卧比较小,用定制家具是比较合理的做整体规划,不浪费一点空间,整体性也比较好。
主卧的线条使用和顶角线的呼应使得整个空间饱满有层次。
深色原木搭配中式装饰品更显华贵大气
这个案例是新中式风格,业主很喜欢中式的一些元素,又不想空间太老气沉寂,因此以中式新古典的表现方式来呈现,主要以素色壁纸,搭配壁画,用金属条收边做圈框,贯穿整个空间。
网址:80平米新中式案例,温馨舒适 https://c.jiaju82.com/news-view-id-706835.html

