当你遇上简约风
发布时间:2020-05-21 11:01
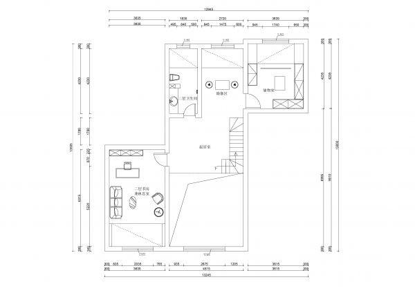
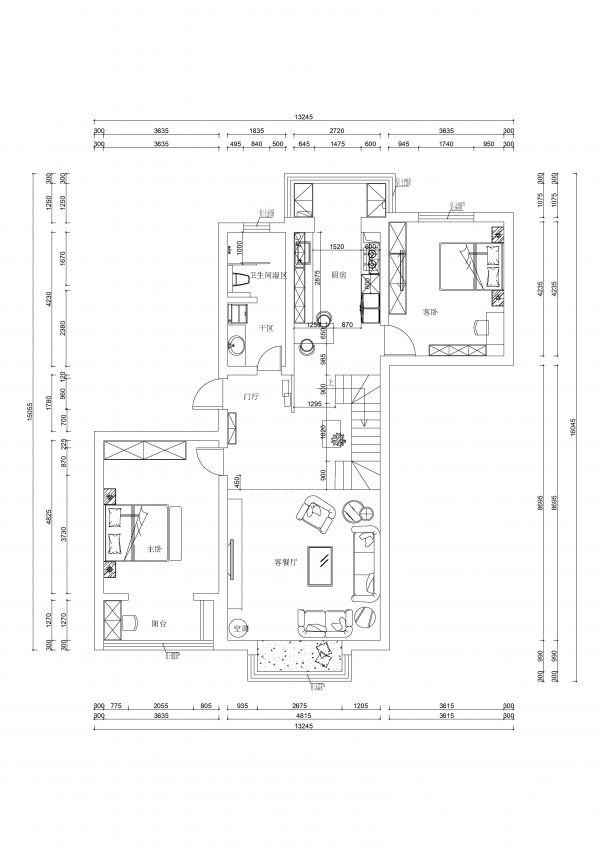
案例详情 本案例位于北京门头沟滨河79号院,建筑面积160平米的复式,设计风格为现代简约。依据业主的喜好,格局上整合空间整体划一,让视线充分延展。该业主是我上一位客户的好朋友。我们一起碰了一次便决定用我了。也是很荣幸能为两位年轻又沟通很融洽的小哥哥小姐姐服务。整体设计理念是结合他两的爱好及风格点。女士比较喜欢有些轻奢感,但又不复杂。空间大气,但又合理。最终经过我们多次的沟通及调整,成套图便呈现出来了。整体浅色主基调,简单巧妙的融合了木质和石材饰面,体现出大块面体量的相互穿插感,既富有高级的质感又使得空间不显单调。体现了业主年轻时尚、现代生活的高品位。
利用原有建筑结构特点,将楼梯置于电视背景墙一侧,立面采用石材材质处理,与木质楼梯及玻璃隔档结合,形成整体大气的感观效果。
家具布置的中正和墙面材质的不对应性形成了有趣的反差,摆脱了以往强迫对应的呆板,床头两侧的灯具变化亦是如此目的。深色胡桃木地板和局部的金属装饰,都让空间具有宽敞却不空旷的亲切围合感,大幅提升卧室的高品质的舒适度。
作为业主的父母房,偶尔过来居住,因此以着增加储物同时满足后期学习的功能 靠正面做了正面的壁柜,既可收纳又有展示的地方,套色的方式让整体活泼有变化。
二层是斜顶,充分利用空间,增加了书房的区域,由于采光相对小,沙发床及靠椅都选用了亮色作为调色。为空间增加几分灵动感。
双一字的整体橱柜,满足了男业主享受生活乐于做美食的需求。白色烤漆的地柜,让空间更显阔亮。对比深色吊柜,有明显反差,不会沉闷压抑。
整体空间南北通透,采光充足,功能分区合理,大大提高了各个空间的使用性及舒适性。
二层由于是斜顶,因此在考虑结构的同时,更多的是增加些储物及舒适性的需求。公共区域作为活动区域,可以瑜伽,沏茶聊天,很是惬意。
网址:当你遇上简约风 https://c.jiaju82.com/news-view-id-703297.html

