北欧小清新的三口之家
发布时间:2020-05-21 09:01
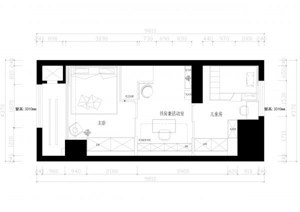
案例详情 客户为一对小情侣,钟爱北欧风,简洁,直接,功能化且贴近自然。一份宁静的北欧风情,绝非是蛊惑人心的设计 此户型为小型LOFT.内部结构方正,采光充足,布局紧凑。入户一侧做了整体鞋帽柜;考虑到不经常做饭,做了开放式厨房,同时连带吧台,整个空间更有情调。阳台在本次设计中采用地台形式,夜晚闲暇之余享受一杯红酒的醇香,凝望着璀璨的夜空,脑中不时浮现出一家三口时的美好画面。二层解决了正常休息及休闲问题。
客厅区域有立柱,正好利用立柱的位置增加了储物及展示柜,使得整体方正,又充分利用空间。
走廊过于狭长,因此对于采光以及整体风格把控,做了亮黄色的谷厂门,作为跳跃色,为该空间增加的别样的氛围。
一入户,做了整体衣帽柜,同时还增加了换鞋的区域。让回家的惬意的心情得以放松。
业主家里有个活泼的小男孩,考虑到后期二胎的打算,最终定了上下床的布局。对侧是用于后期学习区域。
一层整体格局方正,南北通透,基本满足客餐厅及厨卫区域。开放式厨房,让整个空间更加有互动性。
二层在后期设计中,又增加出来一个空间,公共书房。业主平时书籍比较多。整体布局得以空间化。
网址:北欧小清新的三口之家 https://c.jiaju82.com/news-view-id-703263.html

