质鼎国际设计
发布时间:2020-05-16 11:31
质鼎国际设计
设计师:王利亚
设计年限:6年
擅长风格:现代简约、轻奢、新中式、美式、北欧、极简等
代表作:六合天寓、北辰奥园、朗诗国际、广浦公寓等
萧山明华名港城
常住4人,大女儿3岁,即将迎来二胎宝宝。夫妻二人比较喜欢美式风格,喜欢家里温馨一些。后期父母会过来帮忙带小孩,所以希望保留三个房间。



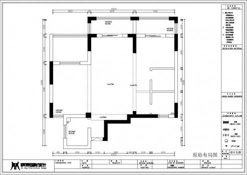
户型优劣势:
户型优势:户型比较方正,空间利用率很高,采光也很好。
户型劣势:主卧室的阳台扩进来后,上面会有一根梁,进门不好放鞋柜,外机位比较少。
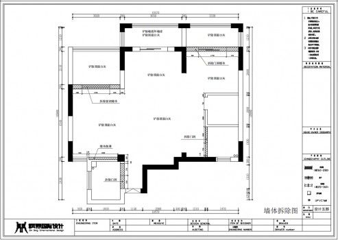
户型改造:进门将厨房墙体打掉做嵌入式的半高鞋柜,增加进门储物;主卧阳台扩进主卧,增大主卧空间;儿童房外的赠送部分也扩进房间,客卫门洞墙体打掉,改变原本门洞位置,做干湿分离,增加客卫的利用率。

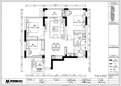
将冰箱从厨房中拿出来,嵌进餐厅旁储物柜中,整齐美观,墙面贴磁性黑板贴,打造属于宝宝的绘画天地。矮鞋柜上面定制玻璃隔断,增加厨房与进门过道采光的通透性。

主卧门口放装修端景柜,配一幅装饰画,让过道不显得单调,餐厅酒柜挡住客卫门洞,进出卫生间也不显得尴尬。入户旁边墙上挂上试衣镜,出门前整理漂亮妆容。

儿童房房门将电视背景墙打断,做大圈石膏线搭配墙布,增加美式的特色,使背景墙更显得大气。

沙发背景墙与电视背景墙做呼应的石膏线和墙布,整个空间更协调大气,美式壁灯点缀墙面,整个空间更加精准。



顶面走一圈8公分石膏阴角线,地面相对应一圈波打线,将客餐厅余其他空间分割开,更显客餐厅的大气。顶面4公分石膏平线,又将客餐厅分开,区域分明。
儿童房一改整体风格,看上去更干净清爽,为小孩营造一个很好的学习氛围。
网址:质鼎国际设计 https://c.jiaju82.com/news-view-id-702590.html

