极简之家
发布时间:2020-05-16 09:01
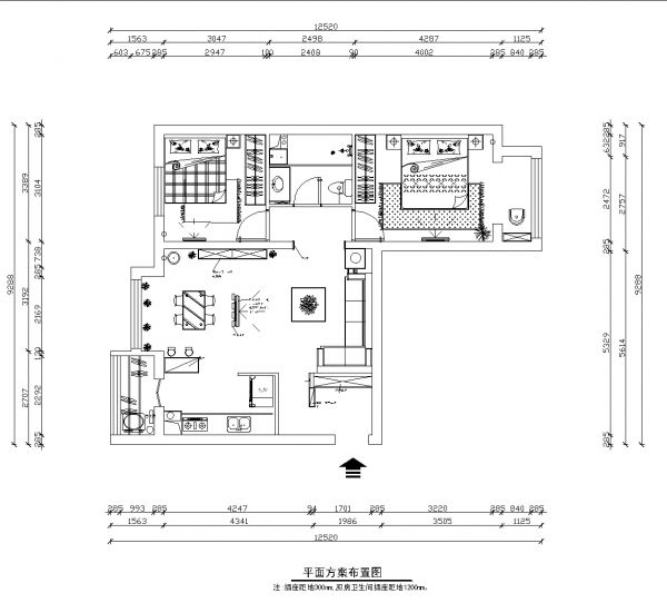
案例详情 年轻夫妻准备做婚房,能接受的预算范围12-18万左右,建筑面积为120,要求简约舒适,空间合理运用,多收纳。 设计理念:首先,在进门处做一个玄关柜,柜底不做满,设计一条灯带,不会使人觉得一进门就很堵的感觉。客厅电视背景墙采用木柱子挂电视的效果,加上开放式的厨房及吧台,这样既能拉伸整体空间感,还能完全满足采光的互相呼应需求,可谓一举两得。卧室整体色调偏暖,给人一种放松舒适的氛围,再加上玻璃钢化镜面的点缀,刚柔并济的将卧室融合的淋漓尽致。 预算说明:全包括
没有电视背景墙,加入半隔断不影响采光,视野等问题
餐桌加半隔断来划分独立就餐区
入户玄关做整体组合柜收纳鞋子,左侧加入鱼缸当做屏风,既不遮挡视线,又有观赏性
卧室整体色调偏暖,给人一种放松舒适的氛围,再加上玻璃钢化镜面的点缀,刚柔并济的将卧室融合的淋漓尽致。
户型整体南北通透,采光充足,动线合理
网址:极简之家 https://c.jiaju82.com/news-view-id-702587.html

