领秀翡翠山北欧三居
发布时间:2020-05-12 10:01
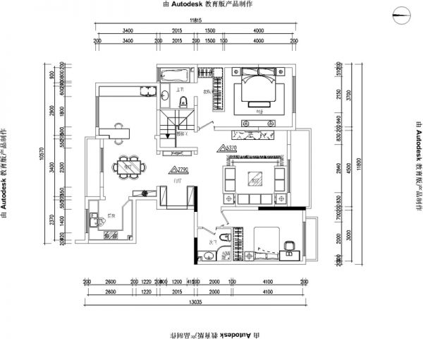
案例详情 业主需求:本方案属于北欧,采用现代和欧式相结合的建筑风格,材质上以乳胶漆为主、背景墙采用原木环保板材造型。常住人口2人,要求舒适、色彩冷色加上原木色、独立书房,空间利用合理。设计理念:本方案属于北欧,采用现代和欧式相结合的建筑风格,材质上以乳胶漆为主、背景墙采用原木环保板材造型。常住人口2人,要求舒适、色彩冷色加上原木色、独立书房,空间利用合理。预算说明:全包花费24万 设计费12000元 主材由软装设计师搭配
本案常住人口三人,要求舒适,设计要比较新颖有创意,充分利用层高空间,合理利用小院空间扩建除放个餐厅。主题为简约美式风格,简约、舒适、温馨的生活空间。
本案常住人口三人,要求舒适,设计要比较新颖有创意,充分利用层高空间,合理利用小院空间扩建除放个餐厅。主题为简约美式风格,简约、舒适、温馨的生活空间。
本案常住人口三人,要求舒适,设计要比较新颖有创意,充分利用层高空间,合理利用小院空间扩建除放个餐厅。主题为简约美式风格,简约、舒适、温馨的生活空间。
本案常住人口三人,要求舒适,设计要比较新颖有创意,充分利用层高空间,合理利用小院空间扩建除放个餐厅。主题为简约美式风格,简约、舒适、温馨的生活空间。
本案常住人口三人,要求舒适,设计要比较新颖有创意,充分利用层高空间,合理利用小院空间扩建除放个餐厅。主题为简约美式风格,简约、舒适、温馨的生活空间。
本案常住人口三人,要求舒适,设计要比较新颖有创意,充分利用层高空间,合理利用小院空间扩建除放个餐厅。主题为简约美式风格,简约、舒适、温馨的生活空间。
网址:领秀翡翠山北欧三居 https://c.jiaju82.com/news-view-id-701753.html

