金地格林格林-现代简约-两居室
发布时间:2020-05-12 01:01
案例详情 【北京实创装饰】融泽家园75平米两居室现代简约惬意之家小 区:金地格林格林房屋状况:毛坯 建筑面积:75平米 户型结构:2室1厅1卫1厨装修风格:现代简约装修模式:全包总 造 价:860200元装修公司:北京实创装饰有限公司(完美家装)包含项目(原装进口福乐阁墙漆、美标整体卫浴洁具、瑞士进口卢森地板、巴赫曼德式木门 、马可波罗磁砖、东鹏墙磁砖、巴赫曼橱柜、卡乐威铝天花、吊顶、包立管、电视背景墙、沙发背景、垃圾清运、管理费、税金等)【设计理念】 与其用昂贵的价格买的屋子让一大堆“家具”给挤的没了“空间”,那不如我们自己享受工作生活的惬意,“简约”从心开始
由于本套案例空间偏小,所以将电视柜、陈列架等做在墙上,电视背景墙不仅起到装饰作用,还增加储物。
客厅装修中,电视背景墙是客厅的一道点睛之笔。一面有创意的电视背景墙,可以瞬间点亮你的眼睛。 本套案例中,背景墙,不经起到装饰效果,还增加了储物功能。
简洁明快的设计风格为主调,简洁和实用是现代简约风格的基本特点。餐厅是家居生活的心脏,不仅要美观,更重要的实用性,整体性。
书房是比较简洁的,又有实用性,首先整体一面墙作为书柜增加储物,又美观实用,书柜在书桌正上方,为工作提供了许多方便。
卧室是非常明亮且简洁的,在窗户的下方做了假阳台,户主闲暇时可以坐在榻榻米上品品茶、晒晒太阳、看看窗外风景。
金地格林格林-现代简约-两居室-原始平面图
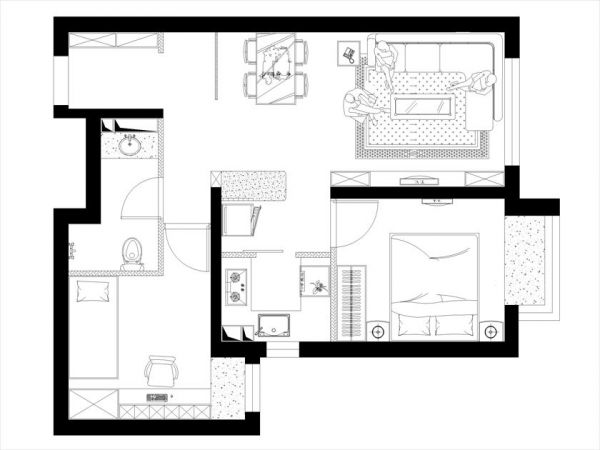
金地格林格林-现代简约-两居室-家具布置图
网址:金地格林格林-现代简约-两居室 https://c.jiaju82.com/news-view-id-701716.html

