金地格林小镇320平美式风格效果图设计
发布时间:2020-05-11 11:02
案例详情 项目名称:金地格林小镇 设计风格:美式风格设计单位:实创装饰集团家装包含:实测面积计价,公摊墙体不算钱▲硬装+软装+定制家具=9.88万元起▲硬装:包工包料包水电,包足140项▲软装:成品窗帘全屋满配 全屋光环境▲定制家具:真整装含家具,全屋定制不限量▲可升、可降、 可减、可换的装修施工工期:50天工程面积:320平米房屋类型:5室2厅1厨3卫整体造价:268032元(设计+硬装)设计说明:美式风格造就了其自在、随意的不羁生活方式,没有太多造作的修饰与约束,不经意中也成就了另外一种休闲式的浪漫,而美国的文化又是一个移植文化为主导的脉络,它有着欧罗巴的奢侈与贵气,但又结合了美洲大陆这块水土的不羁,这样结合的结果是剔除了许多羁绊,但又能找寻文化根基的新的怀旧、贵气加大气而又不失自在与随意的风格。
美式风格造就了其自在、随意的不羁生活方式,没有太多造作的修饰与约束,不经意中也成就了另外一种休闲式的浪漫
但又能找寻文化根基的新的怀旧、贵气加大气而又不失自在与随意的风格。
但又结合了美洲大陆这块水土的不羁,这样结合的结果是剔除了许多羁绊,
而美国的文化又是一个移植文化为主导的脉络,它有着欧罗巴的奢侈与贵气
起居室一般较客厅空间低矮平和,选材上也多取舒适、柔性、温馨的材质组合,可以有效地建立起一种温情暖意的家庭氛围,电视等娱乐用品也放在这一空间中,可以想象在电视广告的声色、锅碗瓢盆的和乐、孩子嬉戏的杂音下,这“三区一体”的其乐融融。
随着家庭自身的要求和特点,建设书房、休闲娱乐室、多功能室、小起居室等空间,以满足家庭多样化的要求
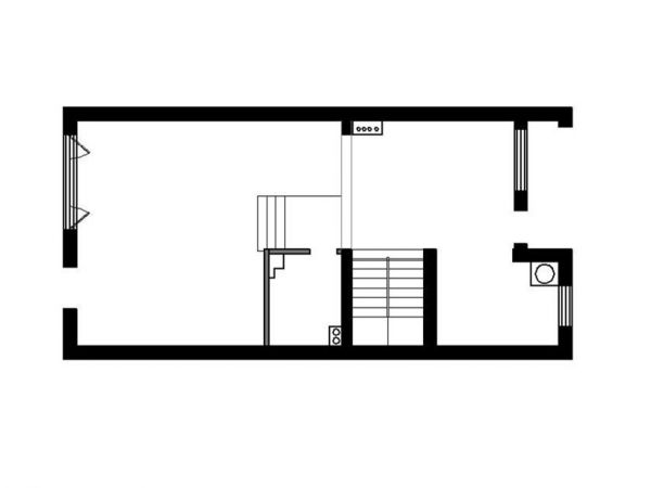
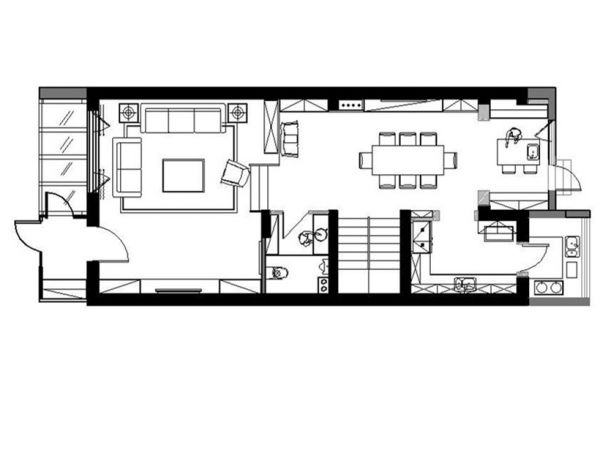
金地格林小镇320平美式风格户型图
金地格林小镇320平美式风格户型图
金地格林小镇320平美式风格户型图
金地格林小镇320平美式风格户型图
网址:金地格林小镇320平美式风格效果图设计 https://c.jiaju82.com/news-view-id-701564.html

