百旺茉莉园100平简欧风格案例效果图
发布时间:2020-05-10 23:01
案例详情 项目名称:百旺茉莉园 设计风格:简欧风格设计单位:实创装饰集团整体家装:装修一口价、闭口合同家装类型:688理想装施工工期:50天工程面积:100平米房屋类型:2室2厅1厨1卫整体造价:72032元(设计+硬装)设计说明:本案是一个两室两厅的案例,设计风格为简约欧式风格,设计中客厅和餐厅的两组罗马柱的运用,将整个空间的设计风格有了一个准确的定位,同时给人以大气的感觉,配合墙面造型和顶面浮雕等一些元素,把欧式的完美和精致展现在人们面前,让人身处其中感觉到浓郁的异域风情。
电视背景墙的暖色大理石和肌理感强的壁纸,配以明亮素实的窗帘、古典色彩的地毯相呼应的吊灯,加上造型简洁大方的沙发背景墙构成了一个典型的欧洲世界,送给心灵一次欧洲的游历。
欧式风格的家居宜选用现代感强烈的家具组合,特点是简单、抽象、明快、现代感强,组合家具的颜色选用白色或流行色,配上合适的灯光及现代化的电器,比如音像器材,就仿佛为主人编织了一个明快美丽的梦想。
舒适书房有着完整的功能。躺在床上分享着自然朦胧的阳光那是多么的惬意!
另有一番洞天的卧室在欧式造型的指导下极好地分割了空间,
本案是一个两室两厅的案例,设计风格为简约欧式风格,设计中客厅和餐厅的两组罗马柱的运用,将整个空间的设计风格有了一个准确的定位,同时给人以大气的感觉,配合墙面造型和顶面浮雕等一些元素,把欧式的完美和精致展现在人们面前,让人身处其中感觉到浓郁的异域风情。
餐厅区暖色的墙纸、明亮的天花在地砖的映衬下营造的是温暖、祥和的氛围,吊灯、壁灯带来的光源效果让就餐的气氛温馨了许多
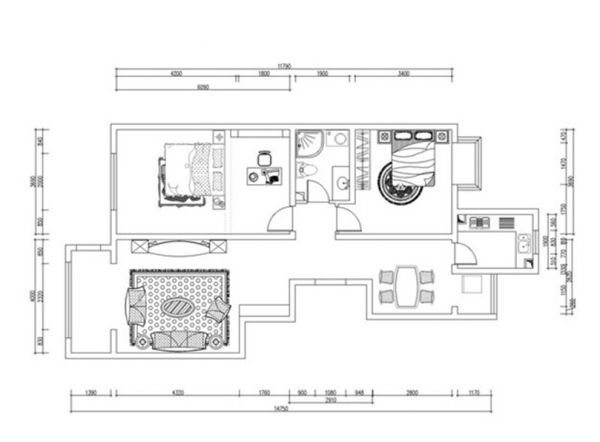
百旺茉莉园100平简欧风格案例户型图
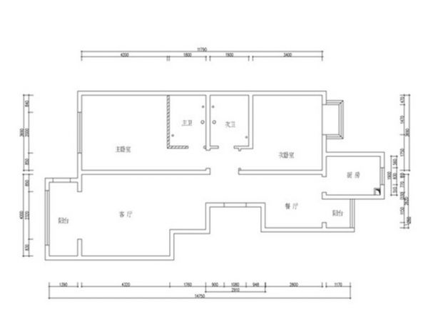
百旺茉莉园100平简欧风格案例户型图
网址:百旺茉莉园100平简欧风格案例效果图 https://c.jiaju82.com/news-view-id-701494.html

