潮白河孔雀城新中式四居
发布时间:2020-05-10 21:01
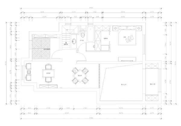
案例详情 业主需求:案例位于潮白河孔雀城,户型修改了卫生间位置和楼梯位置,增加了楼板。增加10平米的使用面积,风格为新中式设计理念:案例位于潮白河孔雀城,户型修改了卫生间位置和楼梯位置,增加了楼板。增加10平米的使用面积,风格为新中式预算说明: 工程造价;13.8万(不含主材) 设计费20000元 主材由业主自行采购20万元
案例位于潮白河孔雀城,户型修改了卫生间位置和楼梯位置,增加了楼板。增加10平米的使用面积,风格为新中式,业主为归国华侨。
案例位于潮白河孔雀城,户型修改了卫生间位置和楼梯位置,增加了楼板。增加10平米的使用面积,风格为新中式,业主为归国华侨。
案例位于潮白河孔雀城,户型修改了卫生间位置和楼梯位置,增加了楼板。增加10平米的使用面积,风格为新中式,业主为归国华侨。
案例位于潮白河孔雀城,户型修改了卫生间位置和楼梯位置,增加了楼板。增加10平米的使用面积,风格为新中式,业主为归国华侨。
案例位于潮白河孔雀城,户型修改了卫生间位置和楼梯位置,增加了楼板。增加10平米的使用面积,风格为新中式,业主为归国华侨。
案例位于潮白河孔雀城,户型修改了卫生间位置和楼梯位置,增加了楼板。增加10平米的使用面积,风格为新中式,业主为归国华侨。
网址:潮白河孔雀城新中式四居 https://c.jiaju82.com/news-view-id-701489.html

