鸿坤·罗纳河谷-混搭风格-别墅设计
发布时间:2020-05-10 17:01
案例详情 小 区:鸿坤罗纳河谷房屋状况:毛坯 建筑面积:340平米 户型结构:4室2厅3卫1厨装修风格:混搭风格装修模式:全包总 造 价:406901元装修公司:北京实创装饰有限公司(完美家装)包含项目(软装.硬装.定制家具都不限量的家装.原装进口福乐阁墙漆、乐家整体卫浴洁具、瑞士进口卢森地板、巴赫曼德式木门 、马可波罗磁砖、东鹏墙磁砖、巴赫曼橱柜、卡乐威铝天花、吊顶、包立管、电视背景墙、沙发背景、垃圾清运、管理费、税金等)【设计理念】在功能方面,客厅体现了主人的生活方式以及传统生活的象征,荷花造型的背景墙加上橄榄绿墙漆以及木式装饰,整体给人沉稳又不失大气的感觉。
彩绘的沙发背景墙加上中式挂窗即体现住户对传统生活的青睐。
餐厅是家居生活的心脏,不仅要美观,更重要的实用性,整体性。餐厅的灯光很重要既不能太强又不能太弱,灯光则以温馨和暖的黄色为基调,顶部做了简单的吊顶附加上木制拼花镶嵌。整体不失设计要求有给人家的感觉。
彩绘的沙发背景墙加上中式挂窗即体现住户对传统生活的青睐。
粉色公主房加上奢华的吊灯,以及木地板简单却不失大气。
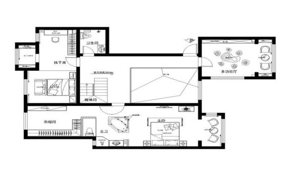
鸿坤·罗纳河谷-混搭风格-别墅设计-户型设计图
鸿坤·罗纳河谷-混搭风格-别墅设计-户型设计图
网址:鸿坤·罗纳河谷-混搭风格-别墅设计 https://c.jiaju82.com/news-view-id-701476.html

