天通苑321平米简约风格三居室
发布时间:2020-05-10 02:01
案例详情 【北京实创装饰】天通苑五居321平米现代简约,独爱艺术触感小 区:天通苑(昌平)房屋状况:毛坯 建筑面积:321平米 户型结构:5室2厅2卫1厨装修风格:简约风格装修模式:全包总 造 价:436500元装修公司:北京实创装饰有限公司(整体家装)包含项目(原装进口福乐阁墙漆、美标整体卫浴洁具、瑞士进口卢森地板、巴赫曼德式木门 、马可波罗磁砖、东鹏墙磁砖、巴赫曼橱柜、卡乐威铝天花、吊顶、包立管、电视背景墙、沙发背景、垃圾清运、管理费、税金等)【设计理念】 让灵感自由释放,创造一个心灵渴望的空间
客厅以现代简约风格都采用米黄色调,所呈现出氛围的舒适而温暖。家具的造型简约舒适,布局对称雅致,使整体空间大气并附有内涵,在装饰细节上崇尚美好居家情调,使之具有家的真实内容和居住的舒适与惬意,最终赋予它一种氛围、一种品位、一个真正意义上的家园。
客厅以现代简约风格都采用米黄色调,所呈现出氛围的舒适而温暖。家具的造型简约舒适,布局对称雅致,使整体空间大气并附有内涵,在装饰细节上崇尚美好居家情调,使之具有家的真实内容和居住的舒适与惬意,最终赋予它一种氛围、一种品位、一个真正意义上的家园。
事实上地下室设计方案是非常多样化的,有的将之利用起来设计成客厅、有的设计成为休闲娱乐场所,但是大多数会选择设计成家庭影院。但是无论哪种设计都必须是你自己需要的,不然就会显得比较浪费。
客厅以现代简约风格都采用米黄色调,所呈现出氛围的舒适而温暖。家具的造型简约舒适,布局对称雅致,使整体空间大气并附有内涵,在装饰细节上崇尚美好居家情调,使之具有家的真实内容和居住的舒适与惬意,最终赋予它一种氛围、一种品位、一个真正意义上的家园。
米黄色调的儿童房,两张舒适的床相邻摆放,浅蓝色的黑板墙为空间添一份清爽沉静的海洋风格。白色木制的书桌、米黄色调的墙漆、橡木色调地板、微微透光的白棉窗帘,满屋都是暖暖的色调。想必宝宝们会很喜欢这样的风格吧!避开室外的强光,在这里看书写字,格外清凉静谧。
天通苑321平米简约风格三居室-原始户型图
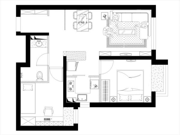
天通苑321平米简约风格三居室-家具布置图
网址:天通苑321平米简约风格三居室 https://c.jiaju82.com/news-view-id-701441.html

