远洋风景180平简约不简单黑白灰经典色调
客厅是主任品味的象征,也是交友娱乐中心,体现了主人品格,地位,高饱和度的色彩,让客厅更有质感品位,让整个房间的温度都在上升。客厅也是交友娱乐的场合,传统电视墙已不能让现在的人产生兴奋感,传统的吊顶也让越来越多的人感到厌烦。在这里,我以黑色玻璃做为背景,以增加独特性与厚重感。墙面的肌理壁纸让大面积的白色墙壁不再那么单调乏味!
主卧的色彩选用了淡淡的大麦色,它柔和、高雅并且容易让人放松下来。无论是壁纸、布艺以及家居的颜色都遵从了这个色彩,给卧室带来不一样的静匿感受。
白色的床加上红色床上用品,黑与白的对比奠定了卧室现代基调,靠墙安排双人床,为卧室节约了空间,显得更加宽敞,黑白相间的吊顶既梦幻又不清冷。
客厅是主任品味的象征,也是交友娱乐中心,体现了主人品格,地位,高饱和度的色彩,让客厅更有质感品位,让整个房间的温度都在上升。客厅也是交友娱乐的场合,传统电视墙已不能让现在的人产生兴奋感,传统的吊顶也让越来越多的人感到厌烦。在这里,我以黑色玻璃做为背景,以增加独特性与厚重感。墙面的肌理壁纸让大面积的白色墙壁不再那么单调乏味!
需要的是一个敞亮的空间。书房里的家具同客厅家具一样的色彩,使房间风格上保持统一性,时尚的吊灯是否也给你带来不一样的感觉呢?一进门,你就会感受到房里漂泊又随性的气息,这里选用的是金属色书桌,不需要庄重,需要的仅仅是几分轻快,几分时尚,可以让主人释放心灵的感觉。
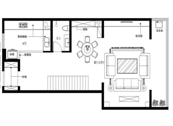
远洋风景180平简约不简单黑白灰经典色调户型图
远洋风景180平简约不简单黑白灰经典色调户型图
远洋风景180平简约不简单黑白灰经典色调户型图
远洋风景180平简约不简单黑白灰经典色调户型图
网址:远洋风景180平简约不简单黑白灰经典色调 https://c.jiaju82.com/news-view-id-701289.html

