家居美图 | 御景新世界 104 平米现代风格御景新世界-104㎡ (5)张
发布时间:2020-05-03 06:16
刘志华(主任设计师)主要作品华发岭南荟,万科金域国际,金地名京,华润凯旋门从业年龄8年毕业院校石家庄铁道学院工作经历 2006-2009 北京华尊装饰工程有限公司、2009-2014北京业之峰沈阳分公司所获奖项<p>中国装饰协会注册会员</p> <p>业之峰年度优秀设计师 </p>
客厅
餐厅
餐厅
客厅
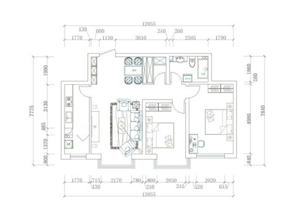
户型图整装三部城市:沈阳地址:沈阳市和平区南京南街工农桥南业之峰装饰介绍:<p>整装三部由总经理作为店长,优秀专业的设计师用他们的多年经验,为大宅客户做出完美设计</p>更多案例网址:家居美图 | 御景新世界 104 平米现代风格御景新世界-104㎡ (5)张 https://c.jiaju82.com/news-view-id-701168.html

