金湖温泉别墅320平欧式风格案例赏析
发布时间:2020-05-02 22:00
案例详情 项目名称:金湖温泉别墅 设计风格:欧式风格设计单位:实创装饰集团整体家装:装修一口价、闭口合同家装类型:88理想装施工工期:50天工程面积:320平米房屋类型:5室3厅1厨3卫整体造价:285088元(设计+硬装)设计说明: 欧式的居室有的不只是豪华大气,更多的是惬意和浪漫。通过完美的典线,精益求精的细节处理,带给家人不尽的舒服触感,实际上和谐是欧式风格的最高境界。同时,欧式装饰风格最适用于大面积房子,若空间太小,不但无法展现其风格气势,反而对生活在其间的人造成一种压迫感。客厅的大部分处在挑空结构之下,大面积的玻璃窗带来了良好的采光,落地的窗帘很是气派。皮质沙发组合有着质感以及流畅的木质曲线,将传统欧式家居的奢华与现代家居的实用性完美地结合。壁炉自然不可或缺,它被安置在空间结构的交汇处,与一幅色彩鲜艳的油画相呼应,敞开式的客厅提供了一个视觉中心。餐厅传统欧式的圆形餐桌,遮挡不住它皇室贵族的气息。墙面用几何形镜面做装饰搭配上欧式元素吊顶,用餐时可以增添食欲,欧式元素的壁纸使整个用餐空间干净淡雅。卧室的壁纸采用的是很典型的欧式碎花搭配的古典式木质家具,尽显主人的品位和稳重。
欧式的居室有的不只是豪华大气,更多的是惬意和浪漫。通过完美的典线,精益求精的细节处理,带给家人不尽的舒服触感,实际上和谐是欧式风格的最高境界。
欧式装饰风格最适用于大面积房子,若空间太小,不但无法展现其风格气势,反而对生活在其间的人造成一种压迫感。客厅的大部分处在挑空结构之下,大面积的玻璃窗带来了良好的采光,落地的窗帘很是气派。
皮质沙发组合有着质感以及流畅的木质曲线,将传统欧式家居的奢华与现代家居的实用性完美地结合。壁炉自然不可或缺,它被安置在空间结构的交汇处,与一幅色彩鲜艳的油画相呼应,敞开式的客厅提供了一个视觉中心。
餐厅传统欧式的圆形餐桌,遮挡不住它皇室贵族的气息。墙面用几何形镜面做装饰搭配上欧式元素吊顶,用餐时可以增添食欲,欧式元素的壁纸使整个用餐空间干净淡雅。
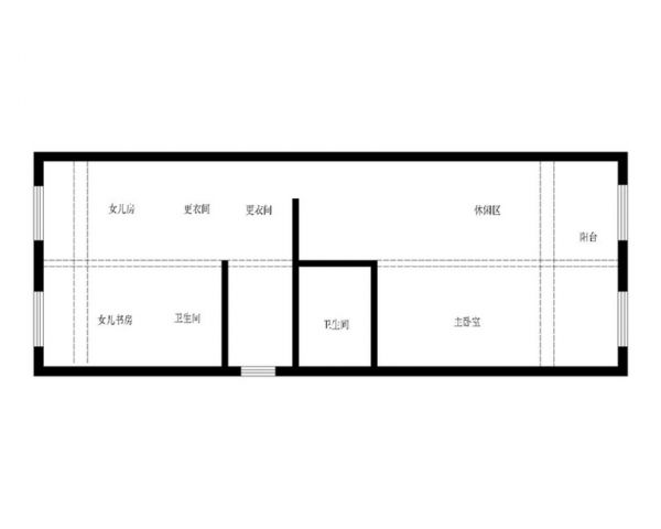
金湖温泉别墅320平欧式风格案例赏析户型图
金湖温泉别墅320平欧式风格案例赏析户型图
金湖温泉别墅320平欧式风格案例赏析户型图
金湖温泉别墅320平欧式风格案例赏析户型图
金湖温泉别墅320平欧式风格案例赏析户型图
网址:金湖温泉别墅320平欧式风格案例赏析 https://c.jiaju82.com/news-view-id-701154.html

