家居美图 | 丁香花园 107 平米其他丁香花园 (5)张
发布时间:2020-05-02 06:17
张玲玲 (设计师)主要作品新港世纪花园 香槟国际 金卫小区 准东花西苑从业年龄3年毕业院校新疆大学工作经历2011年至今所获奖项2012——2013年 获优秀员工、业之峰最佳新人奖;2013——2014 获业之峰设计大赛优秀奖
餐厅
客厅
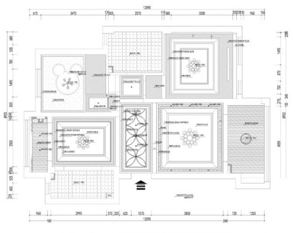
户型图
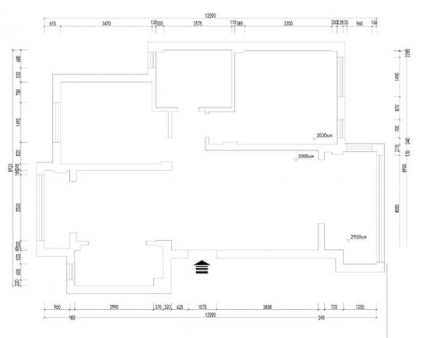
户型图
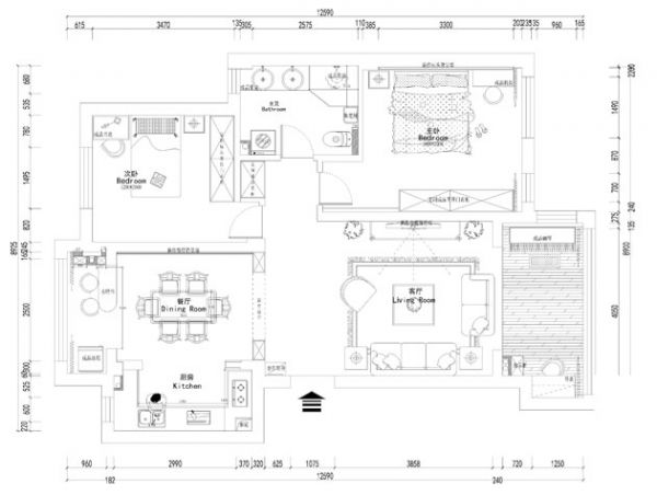
户型图总部精品设计中心城市:乌鲁木齐地址:乌鲁木齐市高新区高新街217号盈科广场A座介绍:更多案例网址:家居美图 | 丁香花园 107 平米其他丁香花园 (5)张 https://c.jiaju82.com/news-view-id-701134.html

