家居美图 | 华侨城 320 平米现代风格华侨城东岸时尚简约风 (6)张
发布时间:2020-04-28 06:18
王珍珍(设计师)主要作品奥克斯广场、保利198、保利花园、保利金香槟、比华利国际城、彩叠园、地质花园、东立国际广场、翡翠城、海珀香庭、恒大金碧天下、华侨城、华侨凤凰国际城、华润二十四城、江安花园、金沙西墅、凯德风尚、凯丽香江、麓从业年龄8年毕业院校西南科技大学工作经历2006年至今所获奖项2009年获得瑞丽家居“寻找家居生命力的大赛”全国一等奖“完美生命力大奖”。 2012年度综合业绩为公司第四名 2012年获得公司“明星服务奖” 2012年被集团邀约在哦眉山参加年度设计师风采大会
客厅
客厅
客厅
客厅
卧室
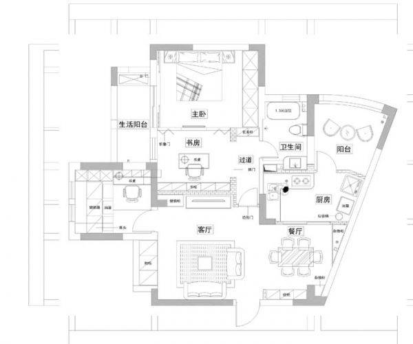
户型图总部精品设计中心城市:成都地址:正府街2号丝绸大楼1F介绍:成都业之峰精品设计中心成立于2000年7月,从刚开始组建选拔上来的3名不同设计风格的精英到现在聚集业内多名才华横溢、激情满怀的各路“英雄”期间也是经历了不少重组的曲曲折折。有欢声笑语,有经历考验,我们依旧同喜同悲、共享荣誉共担压力。今天如此,明天依旧......
更多案例网址:家居美图 | 华侨城 320 平米现代风格华侨城东岸时尚简约风 (6)张 https://c.jiaju82.com/news-view-id-700386.html

