设计案例 | 置信丽都花园城 115 平米美式风格置信丽都花园田园美式 (5)张
发布时间:2020-04-27 06:15
王珍珍(设计师)主要作品奥克斯广场、保利198、保利花园、保利金香槟、比华利国际城、彩叠园、地质花园、东立国际广场、翡翠城、海珀香庭、恒大金碧天下、华侨城、华侨凤凰国际城、华润二十四城、江安花园、金沙西墅、凯德风尚、凯丽香江、麓从业年龄8年毕业院校西南科技大学工作经历2006年至今所获奖项2009年获得瑞丽家居“寻找家居生命力的大赛”全国一等奖“完美生命力大奖”。
2012年度综合业绩为公司第四名
2012年获得公司“明星服务奖”
2012年被集团邀约在哦眉山参加年度设计师风采大会
客厅
其它 | 特写
卫生间
其它 | 主卧
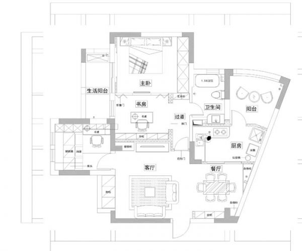
户型图西门博美精品设计中心城市:成都地址:金牛区1环路西三段花牌坊街319号博美装饰城B区3楼10号介绍:成都业之峰西门店是“业之峰”初入成都市场就成立的店面之一,是成都分公司在西南片区的一面旗帜。作为公司支柱店面,为蓉城客户提供着专业的设计以及优质的服务。同时高质量的工程,让我们迅速占领了成都家装市场的主要份额,得到良好的口碑,大大提高了公司知名度,并多次荣获公司“最佳店面”的荣誉称号。我们年青、我们专业、我们敬业!不管您是业之峰的新客户还是老朋友,业之峰西门博美店全体同仁恭候您的光临,我们将为您提供更多、更好、更舒心的服务。
更多案例网址:设计案例 | 置信丽都花园城 115 平米美式风格置信丽都花园田园美式 (5)张 https://c.jiaju82.com/news-view-id-700183.html

