【天通苑西三区】现代简约 四居室 140㎡
发布时间:2020-04-19 23:01
案例详情 本案设计风格整体以现代简约风格为主,简约不等于简单,它是经过深思熟虑后经过创新得出的设计和思路的延展,不是简单的“堆砌”和平淡的“摆放”。外形简洁,但其功能性强,强调室内空间形态和物件的单一性、抽象性,让所有的细节看上去都是非常简洁大气的,装饰的部位要少,但是在颜色和布局上,在装修材料的选择搭配上需要费心思,这是一种境界。更是为了给您一个舒适的家。
客厅1本案设计风格整体以现代简约风格为主
卧室1简约不等于简单,它是经过深思熟虑后经过创新得出的设计和思路的延展,
卫生间1,不是简单的“堆砌”和平淡的“摆放”。
卧室1外形简洁,但其功能性强,强调室内空间形态和物件的单一性
卧室1让所有的细节看上去都是非常简洁大气的,装饰的部位要少,但是在颜色和布局上,
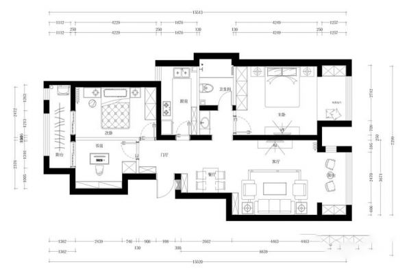
户型图在装修材料的选择搭配上需要费心思,这是一种境界。
网址:【天通苑西三区】现代简约 四居室 140㎡ https://c.jiaju82.com/news-view-id-698867.html

