设计案例 | 国际城 146 平米新古典风格优雅小调 (7)张
发布时间:2020-04-17 06:15
王吉星(设计师)主要作品天山新公爵、顺驰蓝郡、江南新城别墅、名门华都、金正缔景城、天玺香颂、金域蓝湾、祥云国际、东胜紫御府、中山华府、恒大华府从业年龄5年毕业院校河北农业大学工作经历2010年工作至今所获奖项中国建筑装饰协会(CBDA)高级室内设计师
高级软装配饰设计师
2012年获得业之峰“五星级设计师服务"称号
2012年新浪家居推荐优秀设计师
客厅
客厅
餐厅
客厅
餐厅
卧室
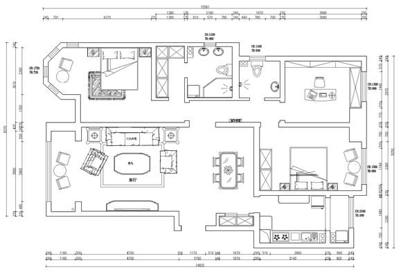
户型图峰翼高端工作室城市:石家庄地址:槐安东路149号米氏家具金马店东区(西美美世界西邻)介绍: 峰翼高端工作室位于石家庄分公司总部,是业之峰集团旗下的别墅大宅设计机构,是目前业之峰最高级别设计部。依托集团公司非凡之实力,秉承“让艺术走进生活”的口号,工作室定位于高档家装、工装市场,旨在为客户从装修设计,到施工管理,到主材选配,到家居配置,到装饰品的摆放,提供全程私人化服务;旨在为物业发展商设计高品质样板间及售楼中心;旨在为企事业单位打造高品位的办公环境。 服务承诺:
1.经验丰富,技艺精湛的资深设计团队专业服务
2.主任级设计师领衔小组服务
3.全国数十省市设计理念的强大设计背景
4.VIP峰翼高端设计工作室前沿领跑
5.免费进行前期咨询设计,免费参加公司家装课堂,免费索取公司宣传资料
6.绿色家装知识免费咨询
7.保证绿色环保家装设计
郑重承诺:设计直到您满意为止
理念:我们致力于将艺术融入您的高尚生活
网址:设计案例 | 国际城 146 平米新古典风格优雅小调 (7)张 https://c.jiaju82.com/news-view-id-698549.html

