远洋傲北-----别墅------现代简约风
发布时间:2020-04-16 14:02
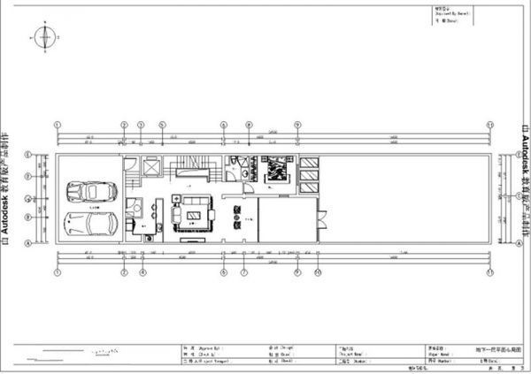
案例详情 小区名称:远洋傲北工程户型:五室三厅工程面积:330㎡居住人口:3口人设计风格:现代简约风格工程造价:14万万项目类别:联排别墅设计理念:几何线条修饰,外立面简洁流畅,立面立体层次感较强,体现时代特征为主没有过分的装饰,一切从功能出发,讲究造型比例适度、空间结构图明确美观,强调外观的明快、简洁。体现了现代生活快节奏、简约和实用,但又富有朝气的生活气。在色彩上,采用柔和的中性色彩,给人优雅温馨、自然脱俗的感觉。在材质上,运用暖色墙漆等,将传统风韵与现代舒适感完美地融合在一起。 简洁大气,色彩与布局相呼应。
在色彩上,采用柔和的中性色彩,给人优雅温馨、自然脱俗的感觉。在材质上,运用暖色墙漆等,将传统风韵与现代舒适感完美地融合在一起。 简洁大气,色彩与布局相呼应。
在色彩上,采用柔和的中性色彩,给人优雅温馨、自然脱俗的感觉。在材质上,运用暖色墙漆等,将传统风韵与现代舒适感完美地融合在一起。 简洁大气,色彩与布局相呼应。
在色彩上,采用柔和的中性色彩,给人优雅温馨、自然脱俗的感觉。在材质上,运用暖色墙漆等,将传统风韵与现代舒适感完美地融合在一起。 简洁大气,色彩与布局相呼应。
在色彩上,采用柔和的中性色彩,给人优雅温馨、自然脱俗的感觉。在材质上,运用暖色墙漆等,将传统风韵与现代舒适感完美地融合在一起。 简洁大气,色彩与布局相呼应。
在色彩上,采用柔和的中性色彩,给人优雅温馨、自然脱俗的感觉。在材质上,运用暖色墙漆等,将传统风韵与现代舒适感完美地融合在一起。 简洁大气,色彩与布局相呼应。
在色彩上,采用柔和的中性色彩,给人优雅温馨、自然脱俗的感觉。在材质上,运用暖色墙漆等,将传统风韵与现代舒适感完美地融合在一起。 简洁大气,色彩与布局相呼应。
在色彩上,采用柔和的中性色彩,给人优雅温馨、自然脱俗的感觉。在材质上,运用暖色墙漆等,将传统风韵与现代舒适感完美地融合在一起。 简洁大气,色彩与布局相呼应。
网址:远洋傲北-----别墅------现代简约风 https://c.jiaju82.com/news-view-id-698416.html

