孔雀城英国宫120平简欧风格案例赏析
发布时间:2020-04-16 12:02
案例详情 项目名称:孔雀城英国宫 设计风格:简欧风格设计单位:实创装饰集团整体家装:装修一口价、闭口合同家装类型:88理想装施工工期:50天工程面积:120平米房屋类型:3室2厅1厨2卫整体造价:104088元(设计+硬装)设计说明: 此户型以欧式风格为主题,结合客户自身的需求与习惯,为了给业主创造一个简约、时尚、舒适的环境。设计中打破了纯古典欧式设计的观念,将古典的皇家装饰元素融入了现代风格设计,使整个空间高贵不失典雅。 客厅大气、简约、沉稳为主基调,不要过多累赘复杂的造型,体现了主人的内蕴品性。沙发造型稳重又不失简约。餐厅背景墙和整个空间结合,是整个房间最有特色的地方。浅黄色的壁纸再配以高贵典雅的水晶吊灯,将整个房间的贵族气质显现得淋漓尽至。卧室简洁大方,欧式壁纸搭配欧式家具,闲的房间非常温馨。
此户型以欧式风格为主题,结合客户自身的需求与习惯,为了给业主创造一个简约、时尚、舒适的环境。设计中打破了纯古典欧式设计的观念,将古典的皇家装饰元素融入了现代风格设计,使整个空间高贵不失典雅。
客厅大气、简约、沉稳为主基调,不要过多累赘复杂的造型,体现了主人的内蕴品性。沙发造型稳重又不失简约。
卧室简洁大方,欧式壁纸搭配欧式家具,闲的房间非常温馨。
餐厅背景墙和整个空间结合,是整个房间最有特色的地方。浅黄色的壁纸再配以高贵典雅的水晶吊灯,将整个房间的贵族气质显现得淋漓尽至。
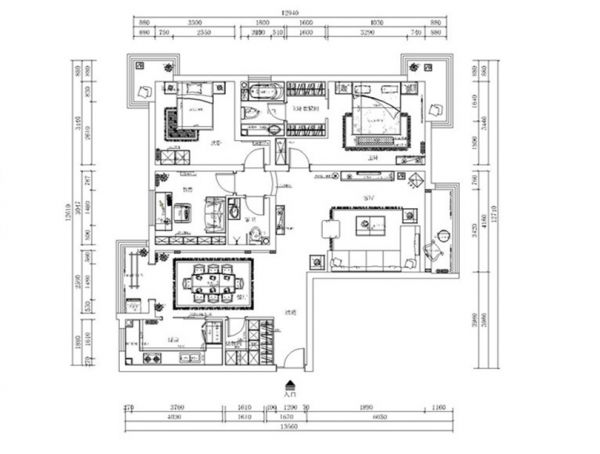
孔雀城英国宫120平简欧风格案例赏析户型图
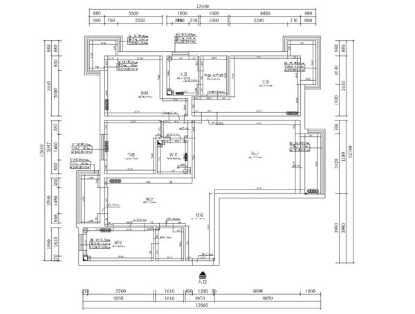
孔雀城英国宫120平简欧风格案例赏析户型图
网址:孔雀城英国宫120平简欧风格案例赏析 https://c.jiaju82.com/news-view-id-698377.html

