家居美图 | 鸿瑞豪庭 210 平米新古典风格欧意之风 (6)张
发布时间:2020-04-16 06:17
刘铭(主任设计师)主要作品半山湾畔、和枫雅居、公园1号、新泉小区、雪莲山别墅、中航翡翠城、昌吉金城维也纳、君悦海棠、马德里春天、汉唐天下、昊元上品、鸿瑞豪庭、昆仑公务员、南门国际置地、御园公馆、康城果林、中央郡等。从业年龄10年工作经验毕业院校四川美术学院工作经历(2004-2014年)所获奖项中国室内装饰协会(CIDA)、注册中级设计师
客厅
餐厅
客厅 | 办公室
客厅
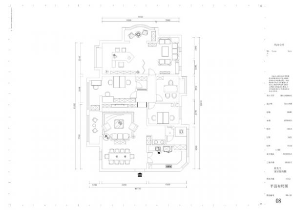
户型图
户型图峰翼高端工作室城市:乌鲁木齐地址:乌鲁木齐市高新区高新街217号盈科广场A座22层介绍:峰翼室内高端工作室:是北京业之峰装饰有限公司针对精英人士及成功人士推出的实现设计理念的高端设计品牌,由公司精英设计师领衔,云集国内业界设计精英,在融合各类设计风格的基础上强化”人本”思想,充分考虑居室主人的自身状况,生活习惯以及设计对主人心理的影响,突现”健康”设计理念.国际标准健康型装饰材料,峰翼室内高端设计工作室专属工队,为中国社会名流阶层创造一个品味与舒适兼备的个性化别墅经典.
网址:家居美图 | 鸿瑞豪庭 210 平米新古典风格欧意之风 (6)张 https://c.jiaju82.com/news-view-id-698287.html

